Площ: Просторна триетажна къща с РЗП 835 кв. м, , разположена на живописно място, предлагаща максимален комфорт и всички удобства за съвременен начин на живот.
Описание на имота:
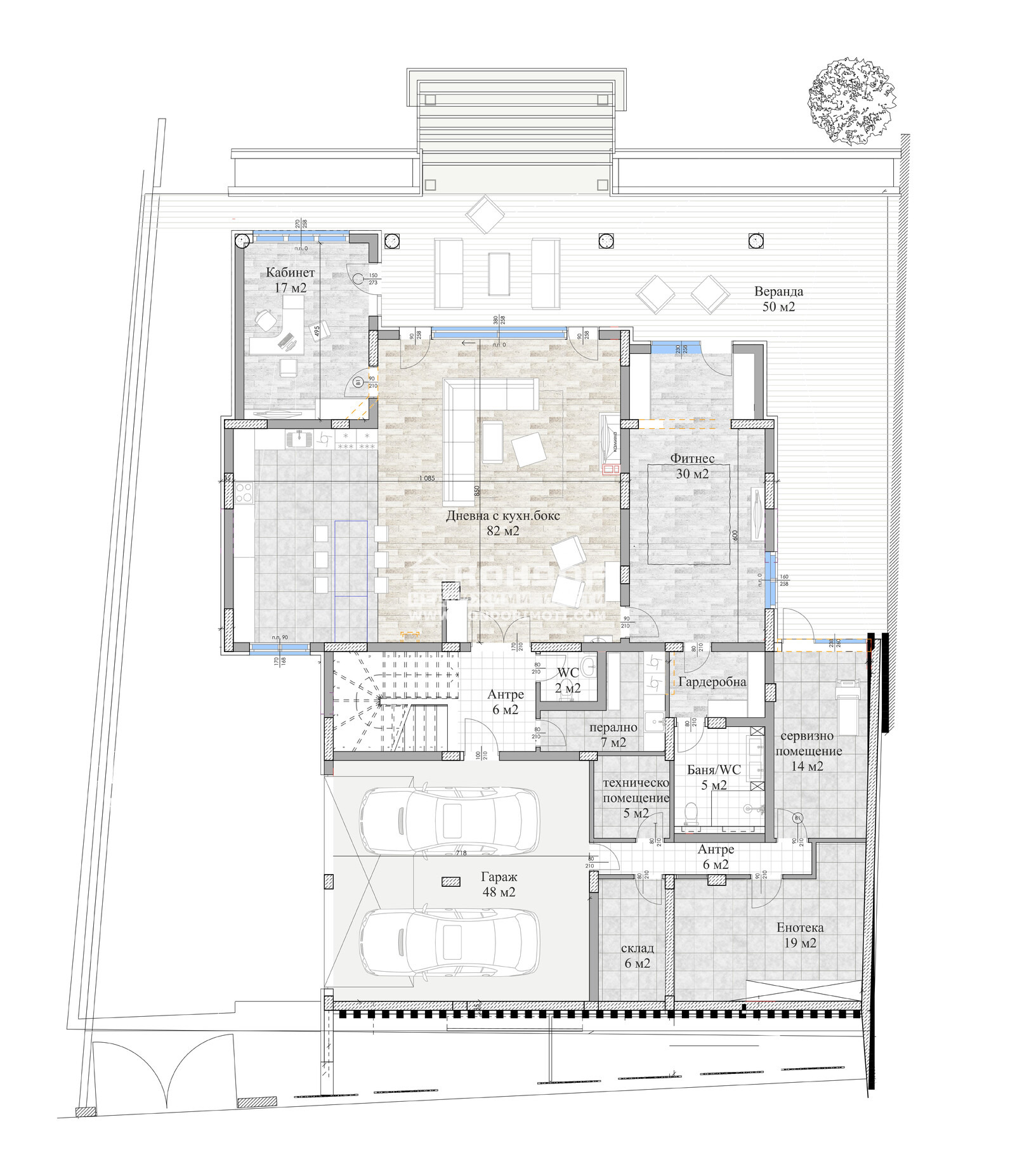
Първо ниво: Дневна с кухненски бокс и директен излаз на голям и широка веранда, кабинет/спалня, фитнес зала, енотека, бана с тоалетна, перално, сервизно и санитарно помещение
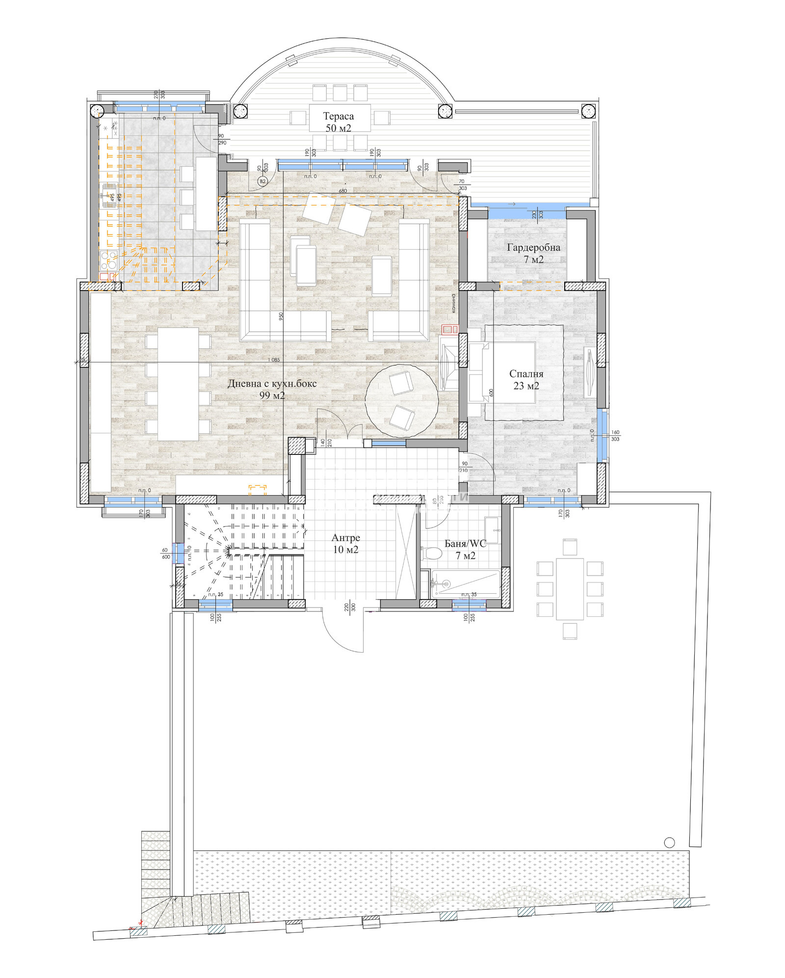
Второ ниво: Огромна дневна с трапезария и кухненска част, спалния с гардеробна и тераса 50 кв. м.
Трето ниво: Три големи спални със собствени бани и дрешник към всяка и излаз от всяко помещение на голяма тераса
Локация: Къщата се намира на изключително комуникативно място, близо до основни пътни артерии с изцяло асфалтов достъп, но в същото време в тих и спокоен район. Просторни, високи и светли помещения
Възможност за персонализиране на пространствата
Изключителна панорамна гледка
Подходяща както за голямо семейство, така и за хора, които търсят място с усещане за простор и лукс
Предимства:
Големи панорамни тераси на всеки етаж, разкриващи впечатляваща гледка към природата/градските светлини.
Фитнес зала, с възможност за оборудване на всичко необходимо за активния начин на живот, без да напускате уюта на дома си.
Енотека специално обособено място за съхранение на изискани вина, подходящо за любители на дегустациите и колекционери.
Покрити гаражи с достатъчно място за няколко автомобила и допълнително пространство за съхранение.
Голям двор, красиво озеленен и подходящ за релакс на открито и възможност за изграждане на басейн.
Къщата се издава на АКТ 14, като има опция за довършване и до АКТ 16 !
ВИЖТЕ ОЩЕ ИЗГОДНИ ОФЕРТИ НА https://www.kondorimoti.com/ С ЕЖЕДНЕВНА АКТУАЛИЗАЦИЯ!
Виж всички обяви в kondor.bazar.bg или тук
        
       
         
         
         
         
         
         
         
             
             
             
             
             
             
            






