Unique Estates | Christie s International Real Estate има удоволствието да Ви представи изключителна къща-близнак на три нива, разположена в престижен затворен жилищен комплекс с площ от 110 декара, в подножието на Витоша планина. Проектът се отличава с над 80% озеленени площи, собствен парк и хармонична природна среда, създадена за висок стандарт на живот.
Комплексът включва самостоятелни къщи, къщи-близнаци, редови къщи и просторни апартаменти, проектирани с фокус върху функционалност, дългосрочна стойност и комфорт.
Акцентът е поставен върху устойчивото развитие и внедряването на интелигентни технологии за дома, гарантиращи енергийна ефективност, удобство и модерен начин на живот.
Освен висококачествената жилищна среда, комплексът предлага богато разнообразие от удобства: детски площадки, зони за барбекю, лятно кино и фитнес съоръжения. Допълнително са предвидени коуъркинг пространства, зони за отдих, smart home системи, басейни, обширни зелени площи, 24/7 охрана и видеонаблюдение.
Стилна и просторна къща с три нива на функционално разпределение, предлагаща комфортни и гъвкави пространства за съвременен семеен живот.
Партер:
Просторна дневна зона с хол, подходяща за семейни събирания и развлечения, с директен достъп до уютен самостоятелен двор. На нивото са разположени още складово помещение, перално/гладачно помещение, баня с тоалетна и техническо помещение.
Първи етаж:
Широкоформатна спалня и кабинет, подходящ за работа от дома или лични творчески занимания, коридор, склад, антре и санитарен възел.
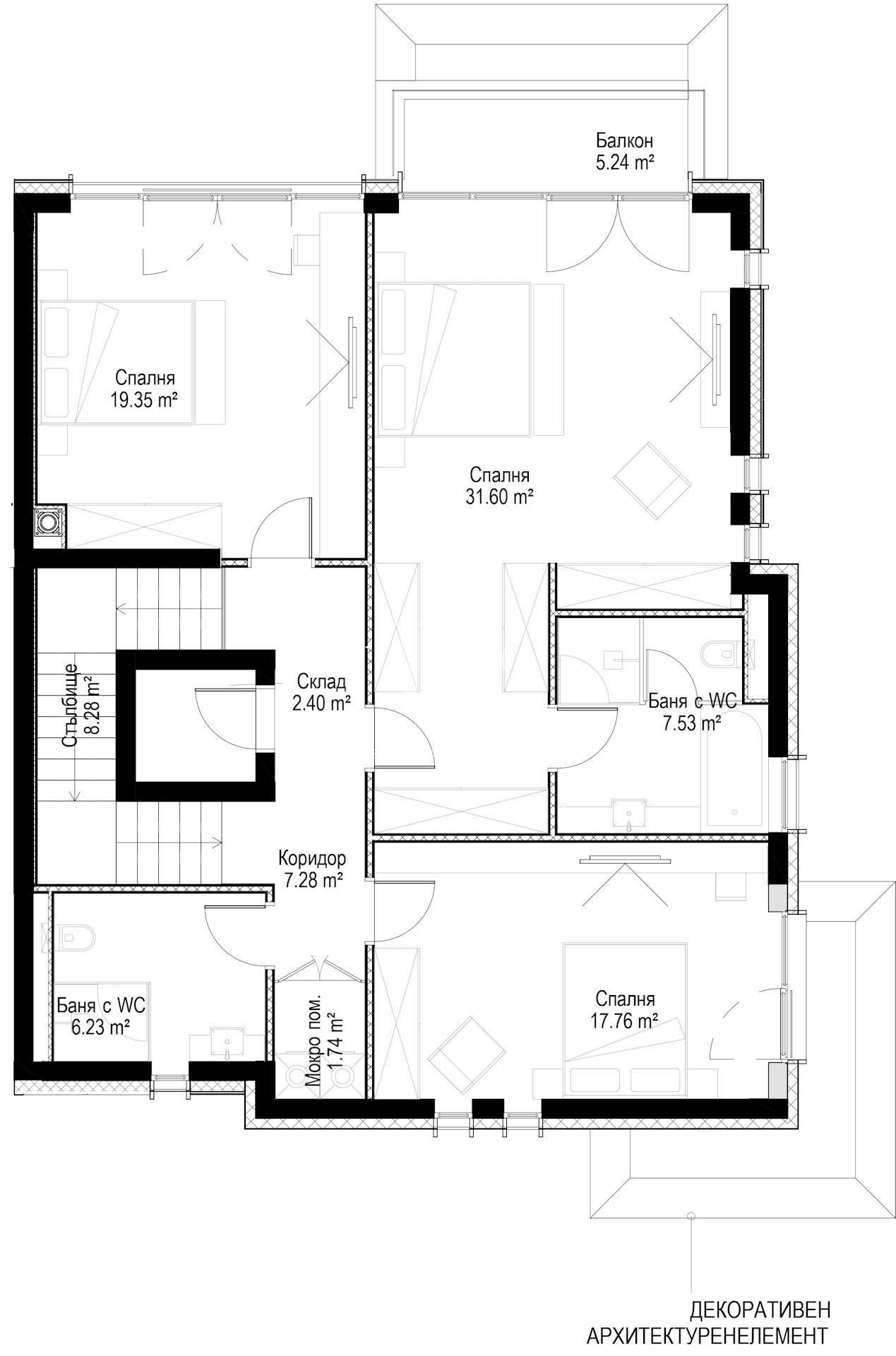
Втори етаж:
Три самостоятелни спални, две бани, склад и мокро помещение, осигуряващи комфорт и функционалност за цялото семейство.
Връзката между нивата се осъществява чрез вътрешно стълбище, с възможност за изграждане на асансьор, допълваща удобството и дългосрочната адаптивност на имота. Цената е без включен ДДС. Ref. ID:23951







