Юник естейтс има удоволствието да ви представи изключителната възможност да се насладите на уединението и ексклузивноста на този първокласен имот, част от модерен затворен комплекс от ново поколение в престижния и предпочитан район Камбаните. Къща е внимателно проектирана, за да задоволи нуждите на съвременния човек, като предлага обширни пространства, високи тавани, огромни витрини за максимална естествена светлина и гледка и изящни детайли, създавайки перфектната среда за вашите лични и семейни моменти.
Предлага се изключителната възможност за интериорно проектиране и довършване, проектиране и изграждане на външен басейн, както и всички възможни архитектурни промени в зависимост от нуждите и желанието на новия собственик.
Срок за разрешение за ползване - септември 2026
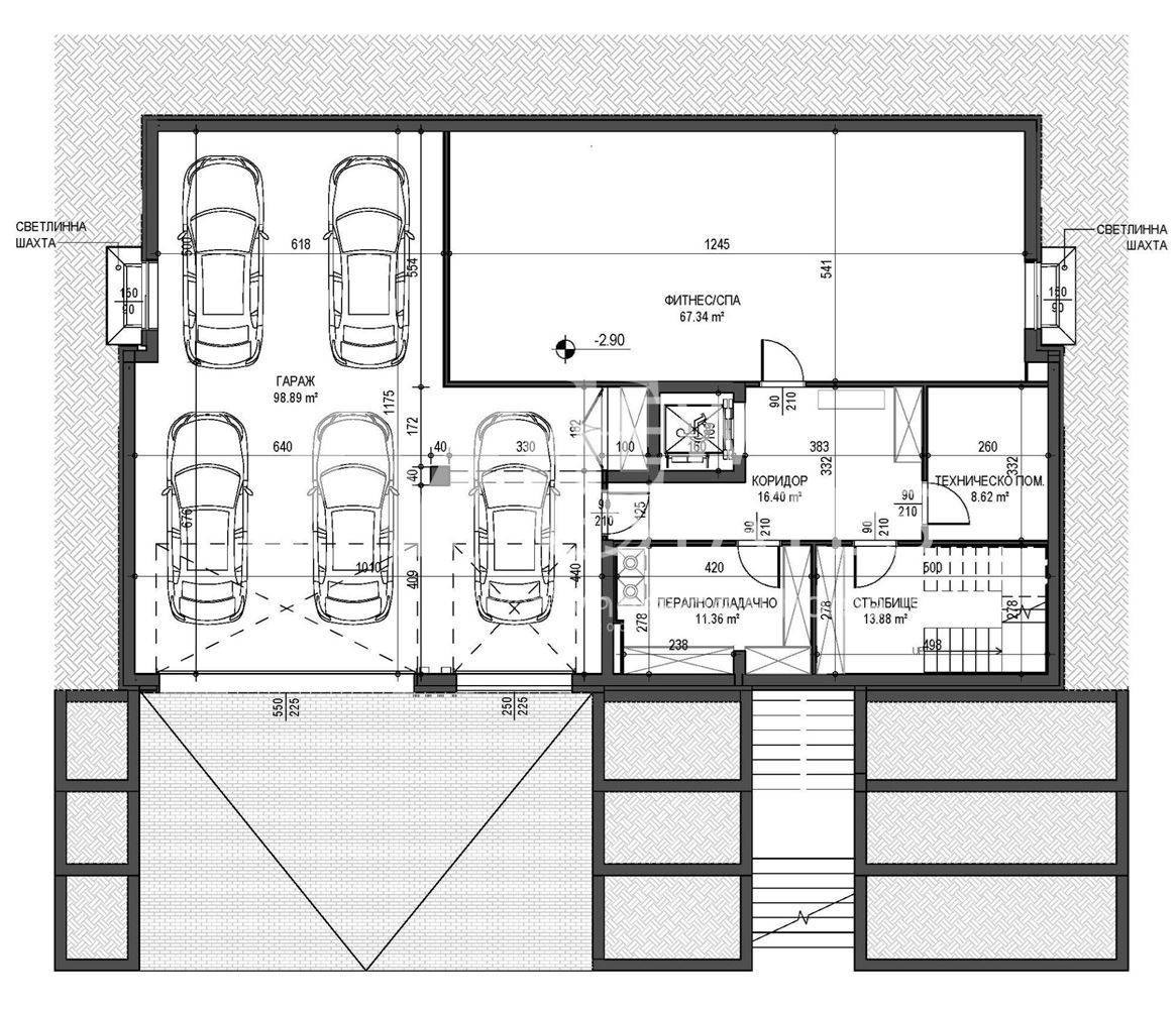
Приземно ниво - Фитнес и спа, помощни помещения - перални и гладачно, серчизно помещение, гараж за пет автомобила.
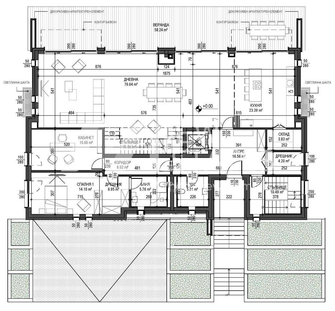
На първо ниво е разположена изключително просторна дневна с трапезария и кухня с излаз кум прекрасна жеранда, спалня за гости с дрешник и баня, кабинет, тоалетна за гости.
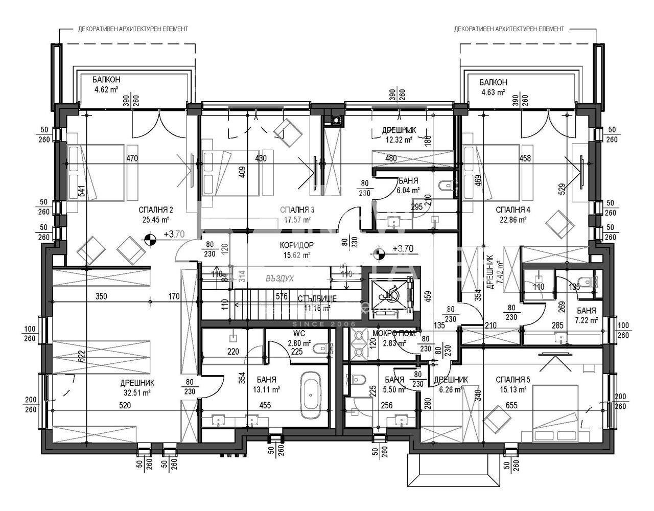
На второто ниво са разположени още четири спални, вяка с баня и девник кум нея. Ref. ID:24530







