АКТ 15!
Билдинг Бокс има удоволствието да Ви представи една от шестте къщи в комплекс 'ОСТА Хоум' - дом заобиколен от природа, спокойствие и простор.
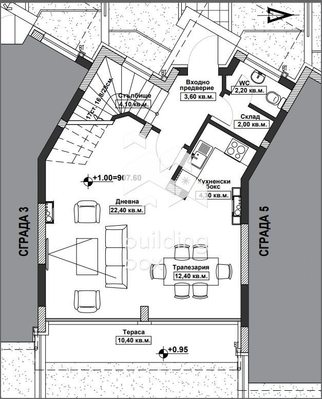
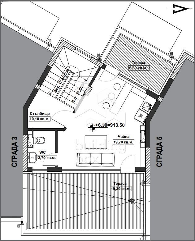
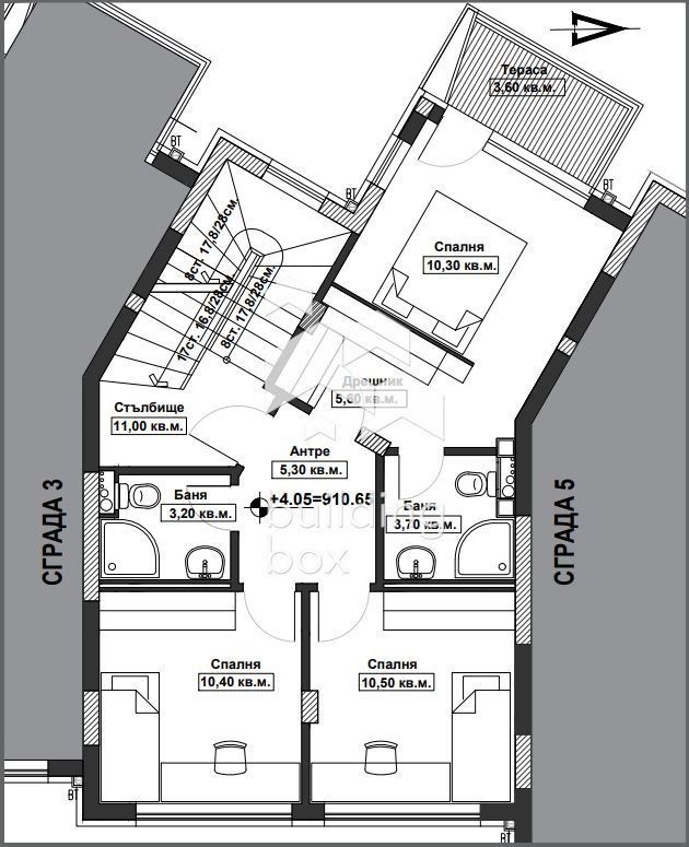
Къщата е със самостоятелен двор от 187 кв.м и с площ от 190,90 кв.м. Първото ниво се състои от: антре, склад, голяма дневна с трапезария и кухненски бокс, тоалетна и прекрасна веранда. Второто ниво: три самостоятелни спални, към една от които има дрешник и тераса, и две бани с тоалетни. На третото ниво: open space помещение с баня и тоалетна, което е подходящо за офис или четвърта спалня. Пред къщата има обособени две паркоместа.
Комплекс 'ОСТА Хоум' се състои от общо шест къщи, като всички са с по три етажа. Основното изложение на къщите е изток-запад.
В момента къщите са на етап пред Акт 15, като за изпълнението им са използвани висок клас материали. Във всяка от къщите има поставено подово отопление, а спрямо предпочитанията на клиента, ще може да се отоплява на ток.
Акт 16 се очаква средата на 2025г.
В комплекса ще бъде монтирана пречиствателна станция.
Билдинг Бокс предоставя безплатна консултация и кредитно съдействие при финансиране на избрания от Вас имот.
Оферта 14916
Виж всички обяви в buildingbox.bazar.bg или тук







