Предлагаме Ви за продажба нова, просторна и функционално проектирана къща, разположена в предпочитаната местност Горна Трака, гр. Варна.
Имотът съчетава модерна визия, светли и удобни помещения, както и собствен двор идеалното място за спокоен и уютен семеен живот.
Къщата се предлага в завършен вид по БДС стандарт.
При желание, може да бъде реализиран готов индивидуален интериорен проект, или да бъде направен нов.
Разпределение:
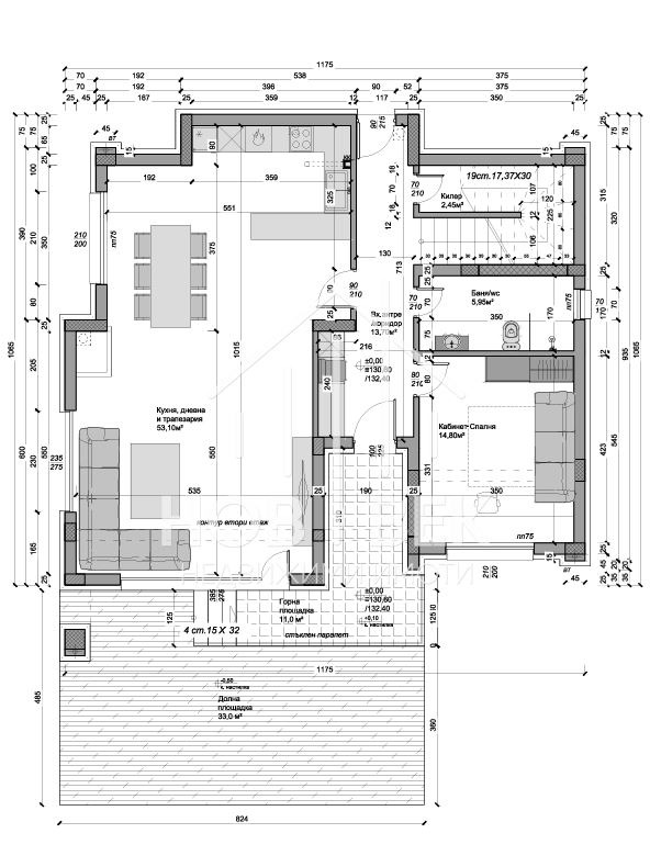
🔹 Първи етаж:
Входно антре (13,70 кв.м)
Просторен дневен тракт с кухненски кът (53,10 кв.м)
Баня с WC (5,95 кв.м)
Килер (2,45 кв.м)
Кабинет / спалня (14,80 кв.м)
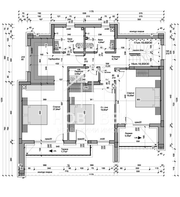
🔹 Втори етаж:
Родителска спалня (27,64 кв.м) с гардеробна, собствена баня с WC (4,72 кв.м) и тераса (7,77 кв.м)
Втора спалня (16,60 кв.м)
Трета спалня (16,00 кв.м) с лоджия (5,45 кв.м)
Баня с WC (4,64 кв.м)
Перално помещение (2,83 кв.м)
Коридор (6,73 кв.м)
✅ Тиха и зелена локация
✅ Отличен достъп
✅ Простор и функционалност
✅ Подходяща за целогодишно обитаване
📞 За повече информация и оглед:
Валентин Динев Нов Век Нови Възможности
+359 882 853 331
Код на оферта: 179







