НОВ ВЕК недвижими имоти предлага на Вашето внимание двуетажна къща с РЗП 217 кв.м. и дворно място от 354,58 кв.м. в новостроящ се затворен комплекс.
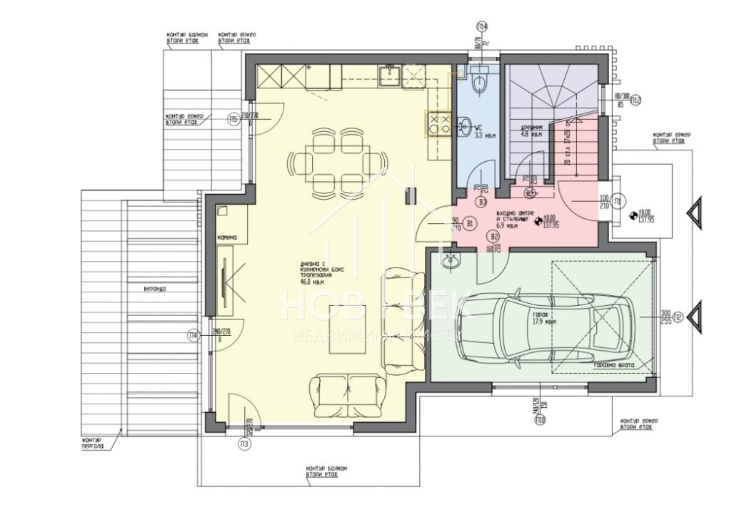
Първи етаж е със ЗП 95,4 кв.м. и се състои от:
-просторен дневен тракт с кухненски кът-46 кв.м.;
-веранда, тоалетна, килер, входно антре и стълбищна клетка;
-гараж-18 кв.м.
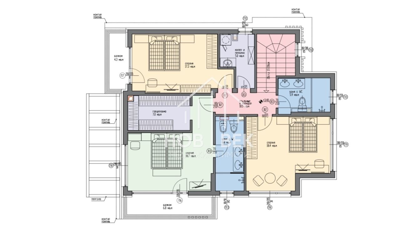
Втори етаж е със ЗП 121,6 кв.м. и се състои от:
-спалня 1 с прилежаща тераса - 18,7 кв.м. с дрешник и прилежаща баня с тоалетна;
-спалня 2 - 18,4 кв.м.;
-спалня 3 с прилежаща тераса - 17,3 кв.м.
-баня с тоалетна, килер/перално помещение, кородор и стълбищна клетка.
Комплексът се състои от 8 двуетажни и 10 триетажни къщи, разполага с отопляем басейн, детска площадка и открит фитнес.
Всяка от къщите ще бъде завършена по БДС,с монтирана алуминиева дограма с термомост на REYNAERS със система за плъзгане с повдигане CXPLS, централно подово отопление, подготовка за изграждане на фотоволтаична система на покрива на всяка къща и 'smart home' система.
Допълнителните паркоместа пред всяка от къщите са БОНУС.
Плащането е разсрочено по време на строителството и е индивидуално за всеки клиент.
НОВ ВЕК Недвижими имоти ще бъде до вас през целия процес на сделката! Извършваме всички необходими технически и юридически проверки на имота, който сте избрали. Агенцията може да ви съдейства и за отпускане на банков кредит при преференциални условия!
НОВ ВЕК - Нови възможности
Код на оферта:50
За повече информация не се колебайте да ме потърсите на :
359882853331 Валентин Динев







