Къща с 5 спални в комплекс Резиденшъл Парк Лозен. Завършена е на ниво шпакловка и замазка, с функционално разпределение, високи тавани и светли помещения. Къщата е с южно ориентиран двор и предлага открити гледки към планината.
Резиденшъл Парк Лозен е жилищен комплекс, разположен в с. Лозен. Комплексът осъществява мечтата на градския човек за спокойствие и уют, качество на живот и близост до природата, в непосредствена близост до града.
Фаза 1 от комплекса включва 136 жилищни единици, сред които редови, еднофамилни и двуфамилни къщи с разнообразна квадратура и разпределения.
Този имот се представлява от Home Boutique и купувачът не дължи комисионна.
Описание
Сутерен: техническо помещение, баня с тоалетна, стая за хоби
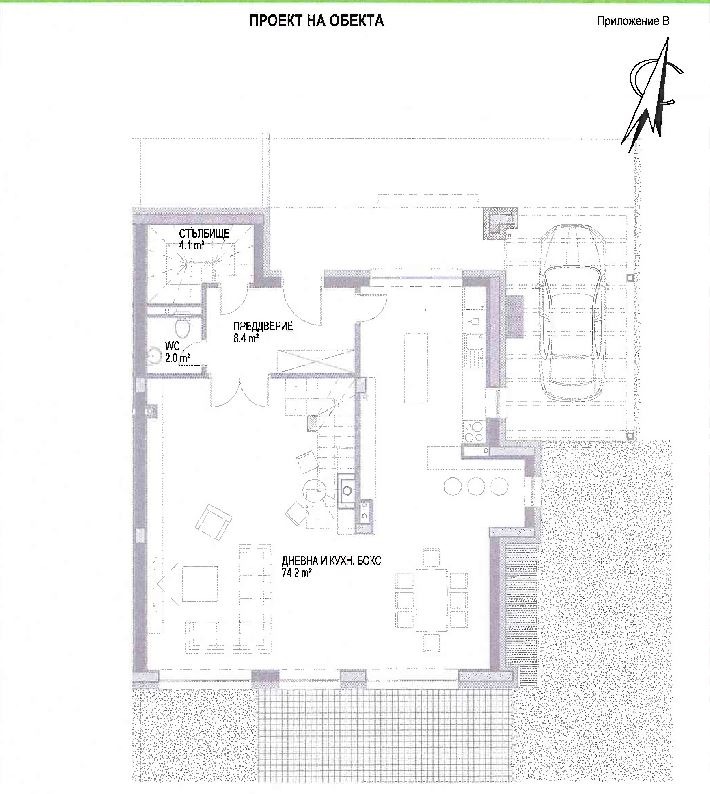
Партер: входно антре, тоалетна, кухня, отворена към трапезария и хол, излаз към двор
Първи етаж: коридор, родителска спалня с прилежащ дрешник и баня, гостна спалня с прилежаща баня, две детски спални, трета баня, тераса
Втори етаж: голямо помещение с възможност да се раздели на две спални, баня, тераса
Ключови детайли
Тип: eднофамилна къща за продажба
Етап: завършена на шпакловка и замазка, издаден акт 16
Спални: 5
Бани: 5
Площ: 437,55 кв.м., от които:
РЗП: 319,43 кв.м.
Сутерен: 118,12 кв.м.
Двор: 220 кв.м.
Паркинг: две покрити надземни паркоместа пред къщата
Цена: 750 000 евро без ДДС
Основни характеристики
Ниско застрояване до три етажа в комплекса
Паркова среда с обширни зелени площи и пешеходни алеи
Детски площадки и спортно игрище в комплекса
Търговска зона спа център с фитнес и басейн, детска градина, училище, заведение за хранене
24-часов контролиран достъп и охрана
Професионална поддръжка на общите части и личните дворни пространства




