Апартамент с 2 спални в Камбаните Резиденшъл Парк, разположен в непосредствена близост до гората. Апартаментът е с функционално разпределение, намира се на партер и разполоага с обширен двор. Жилището сe предлага на етап шпакловка и замазка.
Жилищен комплекс Камбаните Резиденшъл Парк предоставя сигурно, тихо и комфортно място за живеене в близост до София. Проектът предлага спокойна среда за безценните моменти, красиви гледки към София и Витоша и редица природни дадености на района - борова гора, чист въздух, слънчева светлина. Насладете се на невероятна природа, чист въздух и живот сред природата, предоставящ ви всичко необходимо многобройни забавления за деца и комфорт при работа от вкъщи.
Този имот се представлява от Home Boutique и купувачът не дължи комисионна.
Описание
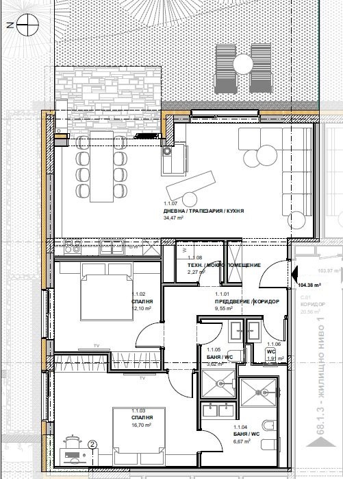
Апартаментът се състои от коридор, килер, мокро помещение, кухня, отворена към трапезария и всекидневна, излаз към двор, спалня, баня, спалня с прилежаща баня.
Общата квадратура на апартамента е 127,78 кв.м., от които
- Застроена площ 104,40 кв.м.
- Общи части - 23,38 кв.м.
Двор 213,33 кв. м.
Ключови детайли
Тип: апартамент с 2 спални за продажба
Район: Камбаните Резиденшъл Парк
Етап: шпакловка и замазка, акт 16
Спални: 2
Бани: 2
Площ: 127,78 кв.м.
Двор: 213,33 кв.м.
Паркинг: 2 паркоместа - 1 подземно и 1 надземно, включени в цената
Склад: 2,10 кв.м.
Основни характеристики
Функционални разпределения
Ниско застрояване
Паркова среда, разположена в естествена гора
Обширни зелени площи, пешеходни алеи и детски площадки
Добре обмислена вътрешна и външна инфраструктура
Прецизно изпълнение с висококачествени материали
24-часов контролиран достъп и охрана
Професионално управление и поддръжка
