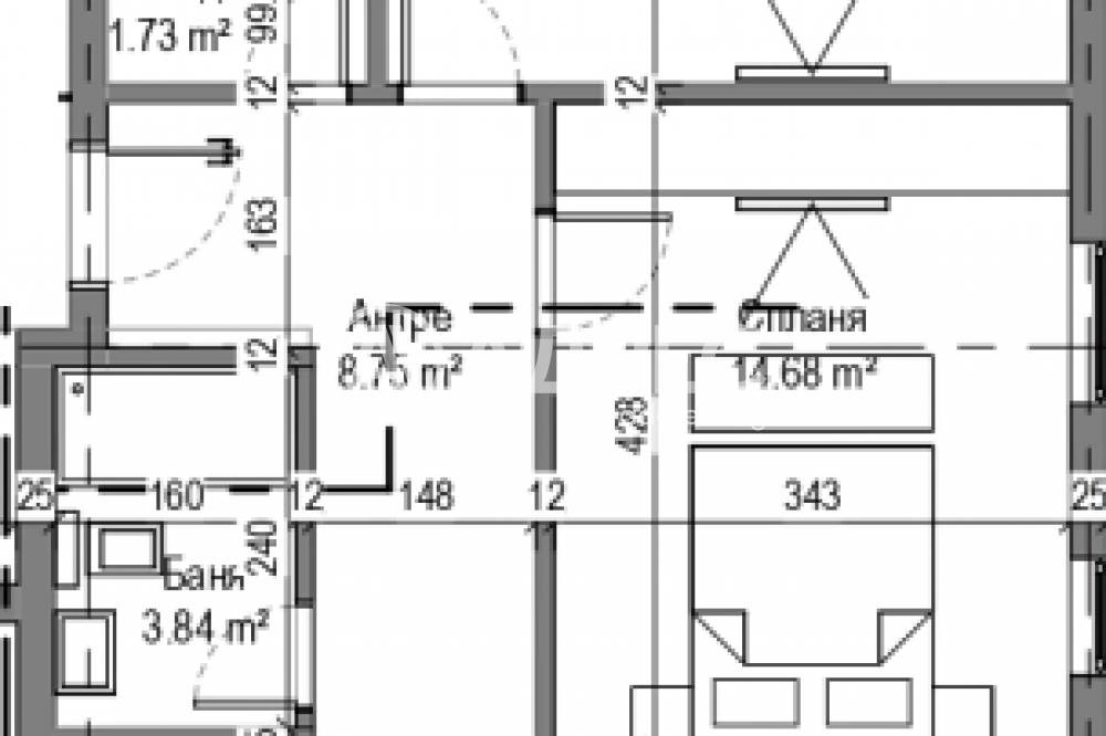
Партерен тристаен апарамент в район Детски град. Състои се от голяма 33 кв. дневна, две спални, всяка, от които е с отделна баня, санитарно помещение и склад. Изложение юг, изток и север. Към апартамента е включен прекрасен двор с площ от 227кв.м. Възможност за закупуване на паркомясто от 20 000 EUR.
Невероятно тиха и приятна локация. Нови малки сгради и къщи в съседство. В близост до американското училище. Перфектна локация за тих семеен живот. Природа!
Сграда пред АКТ 15! Проекта се състои от 2 идентични триетажни сгради, от по 5 апартамента. Изпълнен с висок клас материали от доказан инвеститор.
Проекта ще бъде изграден в местността Детски град.
Усещане за къща!
Чист въздух!
Обади се сега и цитирай този код 653238







