Самостоятелна къща близнак, с 4 спални в комплекс Резиденшъл Парк Лозен, за продажба. Къщата е завършена на ниво шпакловка и замазка, с функционално разпределение, високи тавани и светли помещения. Намира се във високата част на комплекса, с южно изложение и предлага открити гледки към планината.
Резиденшъл Парк Лозен е жилищен комплекс, разположен в с. Лозен. Комплексът осъществява мечтата на градския човек за спокойствие и уют, качество на живот и близост до природата, в непосредствена близост до града.
Фаза 1 и 2 на комплекса включва 220 жилищни единици, сред които редови, еднофамилни и двуфамилни къщи с разнообразна квадратура и разпределения.
Този имот се представлява от Home Boutique и купувачът не дължи комисионна.
Описание
Сутерен (не е включен в общата площ): гараж, склад, техническо помещение
Партер: входно антре, тоалетна, кухня, отворена към трапезария и хол, излаз към двор
Първи етаж: коридор, основна спалня с прилежаща баня и дрешник, две спални, втора баня
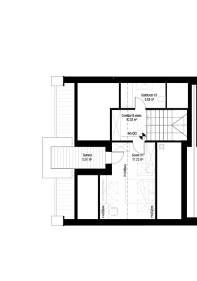
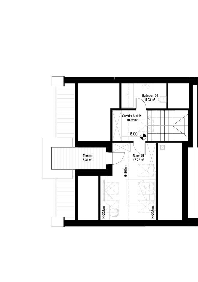
Втори етаж: голямо помещение подходящо за спалня / хоби стая, баня
Ключови детайли
Тип: eднофамилна къща за продажба, близнак
Етап: завършена на шпакловка и замазка, акт 16
Спални: 4
Бани: 3 1/2
Обща площ: 345 кв.м., от които:
Надземна площ: 252,36 кв.м.
Сутерен: 93,09 кв.м.
Парцел: 350 кв.м.
Основни характеристики
Ниско застрояване до три етажа в комплекса
Паркова среда с обширни зелени площи и пешеходни алеи
Детски площадки и спортно игрище в комплекса
Търговска зона спа център с фитнес и басейн, детска градина, училище, заведение за хранене
24-часов контролиран достъп и охрана
Професионална поддръжка на общите части и личните дворни пространства




