Unique Estates представя за продажба нова, просторна къща част от нов, модерен жилищен квартал, намиращ се в село Лозен, на тиха и спокойна локация в подножието на планината, с гледка към града и перфектен достъп.
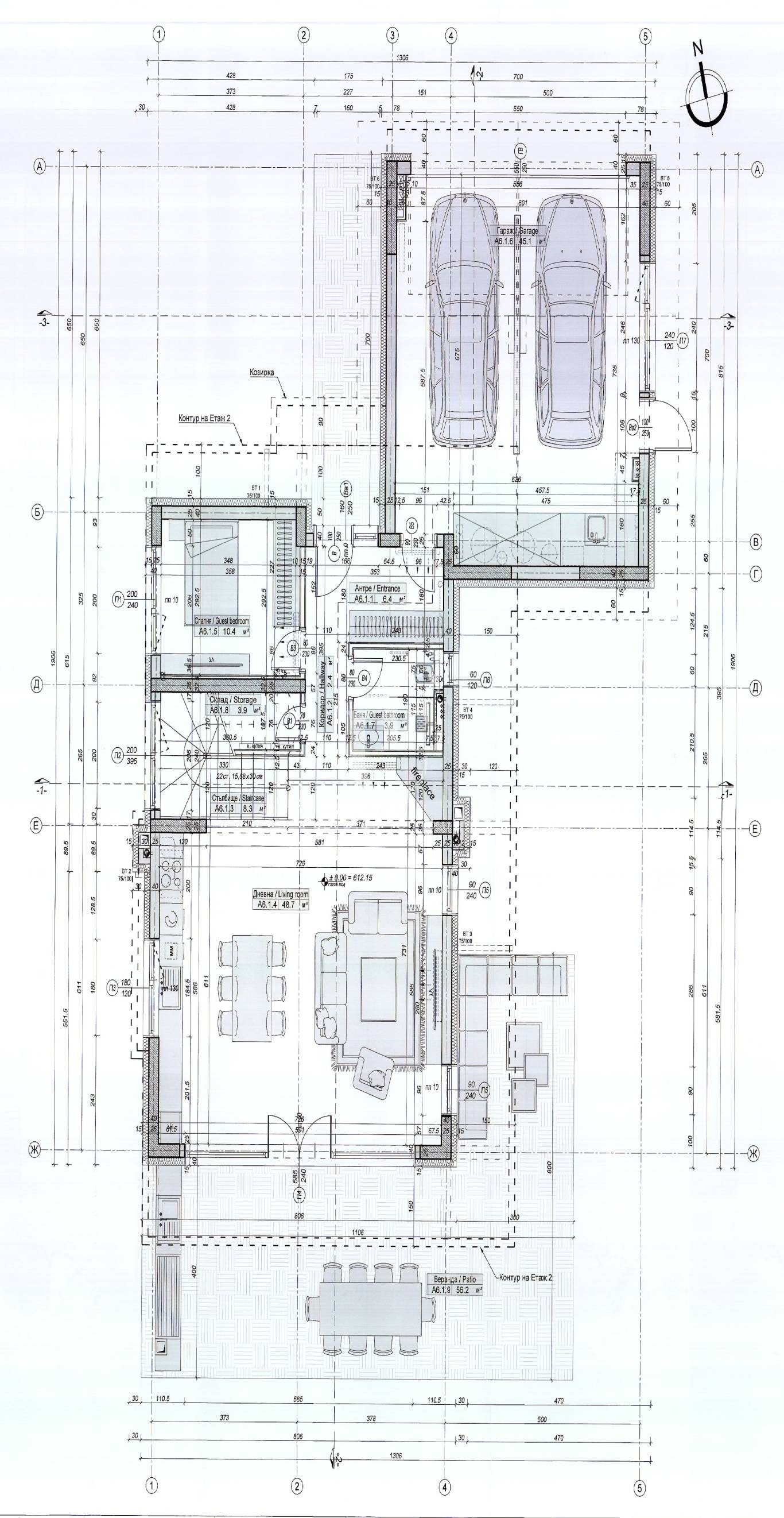
Имотът предлага просторни помещения разположени на 2 етажа с обща площ от 301 кв.м. и индивидуален голям двор с площ от 767 кв.м. Отоплението е решено с термопомпа, а допълнително на покрива на къщата ще бъдат поставени 2 фотоволтаични панела. За изграждането на къщата се използват най-висококачествени материали, тухли Wienerberger Porotherm с 15 см външна топлоизолация, вентилируема фасада, скатен покрив с керамични керемиди Tejas Borja Flat-10, троен стъклопакет с алуминиев профил Schuco с прекъснат термомост и нисък коефициент на топлопреминаване и високо ниво на соларна защита. Собственикът на имота ще има на разположение гараж за 2 автомобила и още три външни паркоместа. Локацията е с бърз достъп до ключови точки в града. Къщата е с АКТ 14, а планираното завършване е края на 2025.
Първи етаж: антре, дневна с кухненска и трапезарна част, от която се излиза на просторна веранда, тоалетна за гости, котелно помещение; баня с тоалетна.
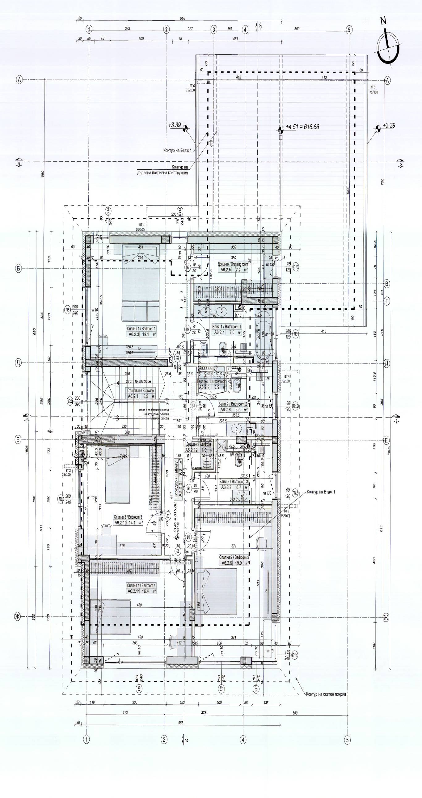
Втори етаж: четири спални с бани и тоалетни към тях и в три от спалните има гардеробни Цената е без включен ДДС. Ref. ID:23444







