* жива охрана за спокойствие на живущите,
* богато озеленяване
* професионална поддръжка
Къщите ще са монолитно строителство и представляват:
- Подземно ниво с гараж за две коли и склад.
- Първи етаж със застроена площ от 94, 65 кв.м входно антре, просторна дневна с трапезария и кухненски бокс, голяма баня с тоалетна, кабинет,спалня за гости стълбищна клетка.
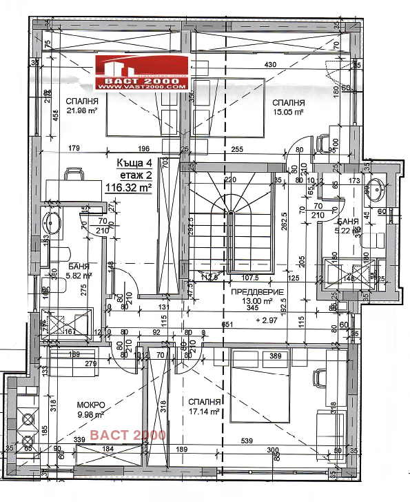
- Втория етаж с площ от 94,65 кв.м са разположени стълбищна клетка, голяма родителска стая със собствена баня и дрешник, две напълно самостоятелни стаи с голяма баня с тоалетна.
Основни инсталации:
- водопровод - инсталация с висок клас полипропиленови тръби и фитинги;
- отопление на газ
За допълнителна информация сме на Ваше разположение.
Виж всички обяви в vast2000.bazar.bg или тук
        
       
         
         
         
         
         
         
         
         
         
         
         
             
             
             
             
             
             
             
             
             
             
            





