Ниа Пропърти Груп продава еднофамилни къщи в комплекс от затворен тип без такса поддръжка с панорамна гледка море в Бургаския залив на кв. Крайморие .
Описание на имотите
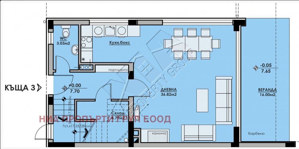
Двуетажните къщи с прилежащ двор и паркомясто са два типа и са разположени на метри от плажа.Общата квадратура на къща от архитектурен тип 1 е 177,86 кв.м., а на къща от архитектурен тип 2 е 189,23 кв.м, като дворът към всяка една от тях е с различни размери.
На първия етаж е разположена дневна с кухненски бокс, тоалетна, складово/мокро помещение и веранда и помещение за инструменти, а на втория етаж по три спални, две бани/WC и тераса. Дворното пространство е между 86 – 168 кв.м., което ще може да оползотворите по собствено желание. В къщата има и комин при желание за поставяне на камина.
БЕЗ ТАКСА ПОДДРЪЖКА!
Описание на комплекса
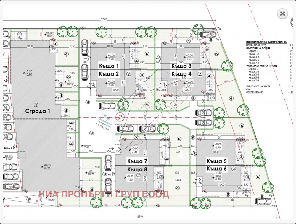
Жилищен комплекс „KRAYMORIE VILLAS AND SUITES” е позициониран на 50 метра от централния плаж в старата част на , кв. Крайморие, гр. Бургас. В комплекса са разположени 8 еднофамилни къщи на два етажа и една жилищна сграда на четири етажа и сутерен. Теренът е с голяма денивелация, което позволява гледка към морето от всеки един апартамент или къща. В близост има магазини, ресторанти и аптека, а централната улица на кв. Крайморие е само на 100 метра.
В сградата са предвидени едностайни, двустайни и тристайни апартаменти с МОРСКА ПАНОРАМА!
Към партерните апартаменти, освен веранда има и прилежащо дворно място. Към сградата има надземни паркоместа, граничещи с улица "Вълнолом" и подземни гаражи и паркоместа, разположени в сутерена. С цел намаляване на общите части са предвидени два входа на жилищната сграда – вход „А“ и вход „Б“ с два самостоятелни асансьора. За удобство на всички живущи асансьорите слизат до сутерена на жилищната сграда. Апартаментите са проектирани изцяло така, че да са насочени към морето. Големите стъклени прозорци и стъклени парапети допринасят за още по-добра видимост към морската шир. Архитектурата е съчетание на стъкло, камък и дърво, а основния акцент е върху зеленината. Планирано е стъпаловидно озеленяване на целия незастроен имот.
Двуетажните къщи с прилежащ двор и паркомясто са два типа и са разположени на метри от плажа.Общата квадратура на къща от архитектурен тип 1 е 177,86 кв.м., а на къща от архитектурен тип 2 е
Виж всички обяви в niaproperty.bazar.bg или тук







