Представяме на Вашето внимание просторни, луксозни еднофамилни къщи в строеж в квартал Крайморие. Модерен градски дом, съобразен с последните тенденции за функционалност, удобство и уют. Разположени във високата част на квартала, предоставящ панорамна гледка към града и морето. Локацията на имота съчетава бърз и лесен достъп до централната градска част с близост до плаж, чист въздух, тишина и красиви гледки.
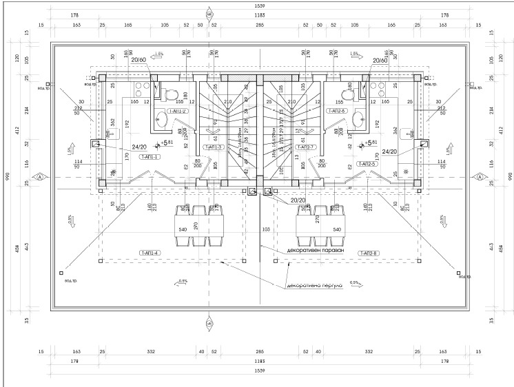
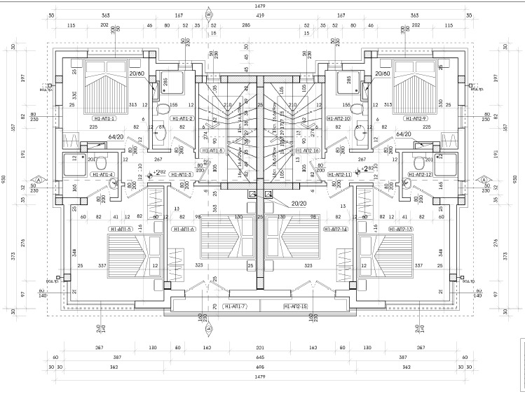
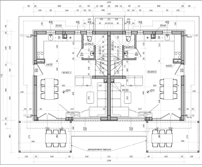
Къщите са групирани по 2 в четири сгради. Всяка къща е с обща разгъната застроена площ 197 кв.м. и притежава самостоятелно обособен за реално ползване двор с площ от 110 кв.м до 130кв.м., включващ възможност за две паркоместа.
Разпределението на застроената площ е както следва:
Първи етаж - кухненски бокс с трапезария и хол, баня с WC.
Втори етаж - три спални, едната от които с баня-WC и отделно още една баня-WC за другите две.
трети етаж - просторна стая, баня с WC, голяма панорамна тераса с гледка към залива.
Къщата е изпълнение според най-новите стандарти, което прави имота идеален както за дом в града, така и за инвестиция, с възможност за генериране на доходност! Без такса поддръжка. Имотите ще бъдат издавани по БДС с термопомпена система за отопление и охлаждане. Разсрочено плащане, съобразено с етапа от строителството.Съдействие за банков кредит.
Виж всички обяви в freelandbg.bazar.bg или тук







