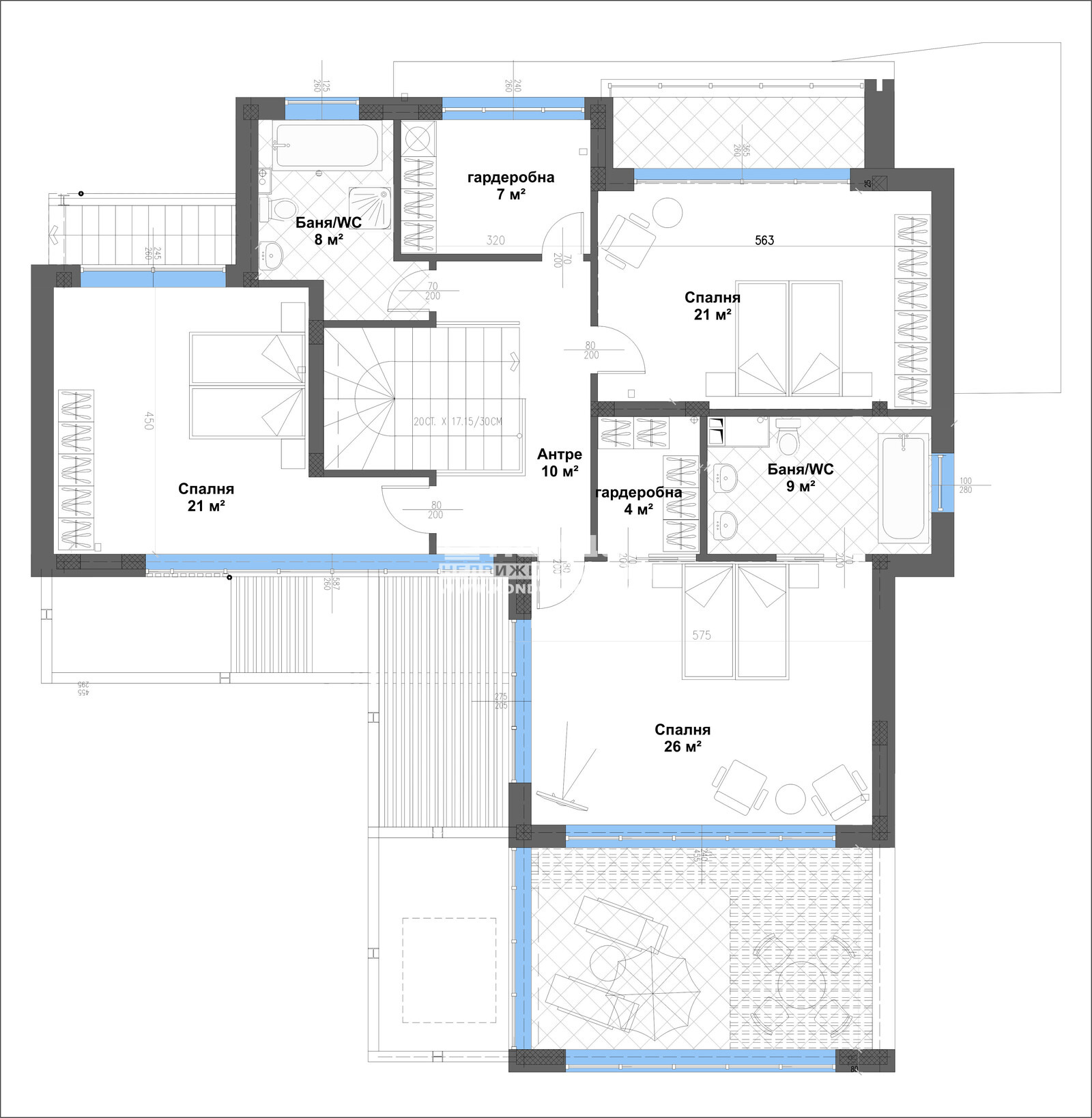
Оферта 55917: ГОТОВА КЪЩА!!! Агенция Кондор Ви предлага да закупите новоизградена къща с панорамна гледка към град Пловдив. Основните й предимства са модерната архитектура, добрата локация и функционалното разпределение на жилищната площ. Къщата е разположена в собствен двор с площ 535 кв.м и има РЗП от 326 кв.м, като 41 кв.м са сутеренна площ с обслужващи помещения. На първи жилищен етаж се намира просторна дневна с големи френски прозорци, осигуряващи светлина и уют, както и с обособена трапезария с кухненски бокс - 61 кв.м, с предвидено място за камина, една спалня с възможност за голям гардероб и френски прозорци - 21 кв.м, една баня с тоалетна - 8 кв.м, голямо и просторно входно антре - 25 кв.м. На втори етаж е разположена светла родителска спалня - 26 кв.м с излаз на тераса с възможност за поставяне на комфортна мека мебел, към стаята има прилежаща баня с тоалетна - 9 кв.м и обособено собствено гардеробно помещение - 4 кв.м, втора южна спалня - 21 кв.м с опция за голям гардероб и собствена тераса, трета източна спалня - 21 кв.м, още едно санитарно помещение - 8 кв.м, функционално гардеробно - 7 кв.м и коридор - 10 кв.м. Завършена е с висококачествени материали, червена Австрийска Тухла, троен стъклопакет на шест камерна дограма, 10см. външна изолация, изградена и оформена външна планировка. Имотът е с модерна архитектура, създадена така че да създаде максимален комфорт и пространство на своите обитатели. Огромните прозорци допринасят допълнително за усещането за светлина и простор. Паркирането е подсигурено с две закрити паркоместа . Районът се оформя като квартал от новопостроени луксозни къщи и е предпочитано място от хора, избрали да избягат от забързаното ежедневие на градската среда. Съдействие за Банков Кредит с изключително изгодни условия за Клиенти на Агенция КОНДОР !!!
ВИЖТЕ ОЩЕ ИЗГОДНИ ОФЕРТИ НА https://www.kondorimoti.com/ С ЕЖЕДНЕВНА АКТУАЛИЗАЦИЯ!







