Оферта 67368: Продава се къща с уникална панорама и собствен парцел в с. Марково
Предлагаме Ви за продажба самостоятелна къща, разположена в едно от най-желаните и бързо развиващи се села край Пловдив с. Марково. Имотът впечатлява с невероятна панорамна гледка към града и планината, тишина, чист въздух и добър достъп.
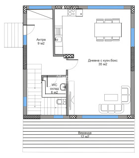
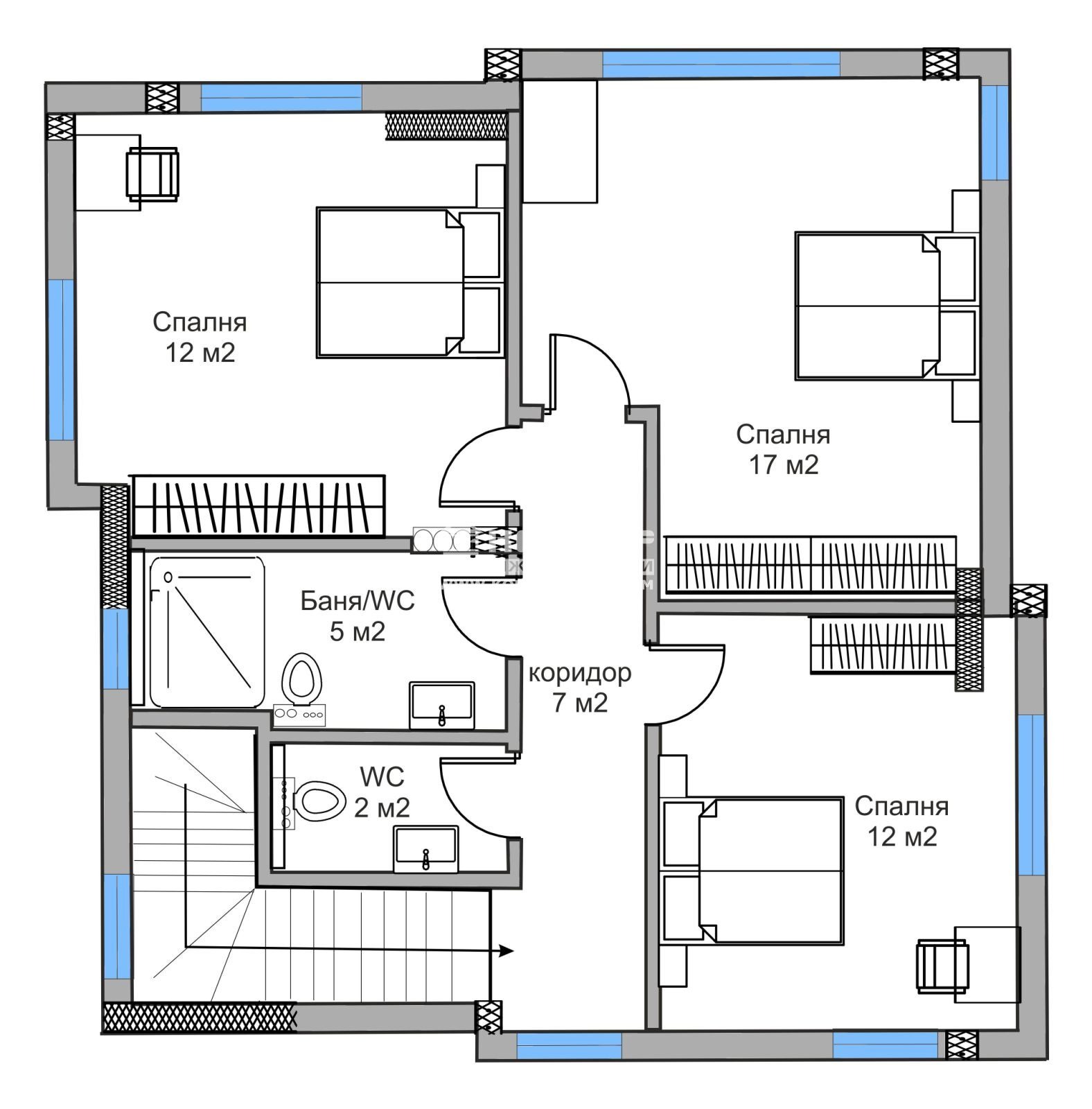
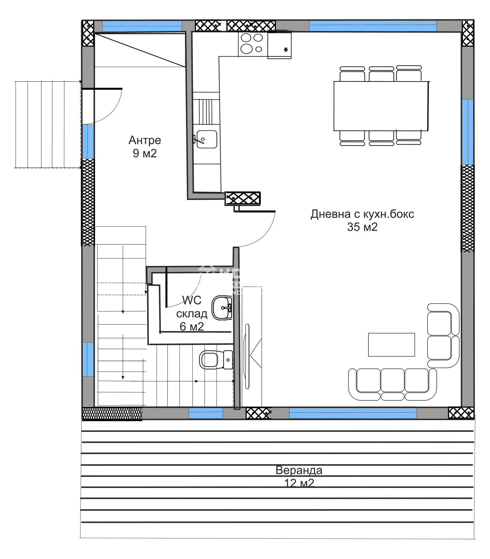
Разпределение:
Първо ниво: просторен хол с кухненски бокс, баня с тоалетна;
Второ ниво: три спални, перално помещение и втора баня.
Къщата ще бъде завършена до ключ с възможност за избор на материали и довършителни работи.
Предвидена е най-висок клас термо-помпа Mitsubishi, подово отопление на всички площи, финна шпакловка и латекс по избор на клиента, декоративни мазилки и окачени тавани, напълно обзаведени и оборудвани бани със смесители Hansgrohe и ламиниран паркет по избор !
Разполага със собствен парцел, подходящ за озеленяване, барбекю зона, басейн или други удобства според предпочитанията на бъдещите собственици.
Локацията съчетава спокойствието на природата с бърз и лесен достъп до град Пловдив.
Идеален избор за целогодишно живеене или като ваканционен имот.
ВИЖТЕ ОЩЕ ИЗГОДНИ ОФЕРТИ НА https://www.kondorimoti.com/ С ЕЖЕДНЕВНА АКТУАЛИЗАЦИЯ!



