VISTATE представя уникална възможност за покупка на търговско помещение, разположен в затворен комплекс в район Павлово, един от най-зелените квартали на София.
Можете да се възползвате от безупречните услуги на VIBRIX за ремонт и строителство по Ваша идея, а също така и от проектиране, дизайн, обзавеждане и всичко друго, свързано с новият Ви мечтан дом.
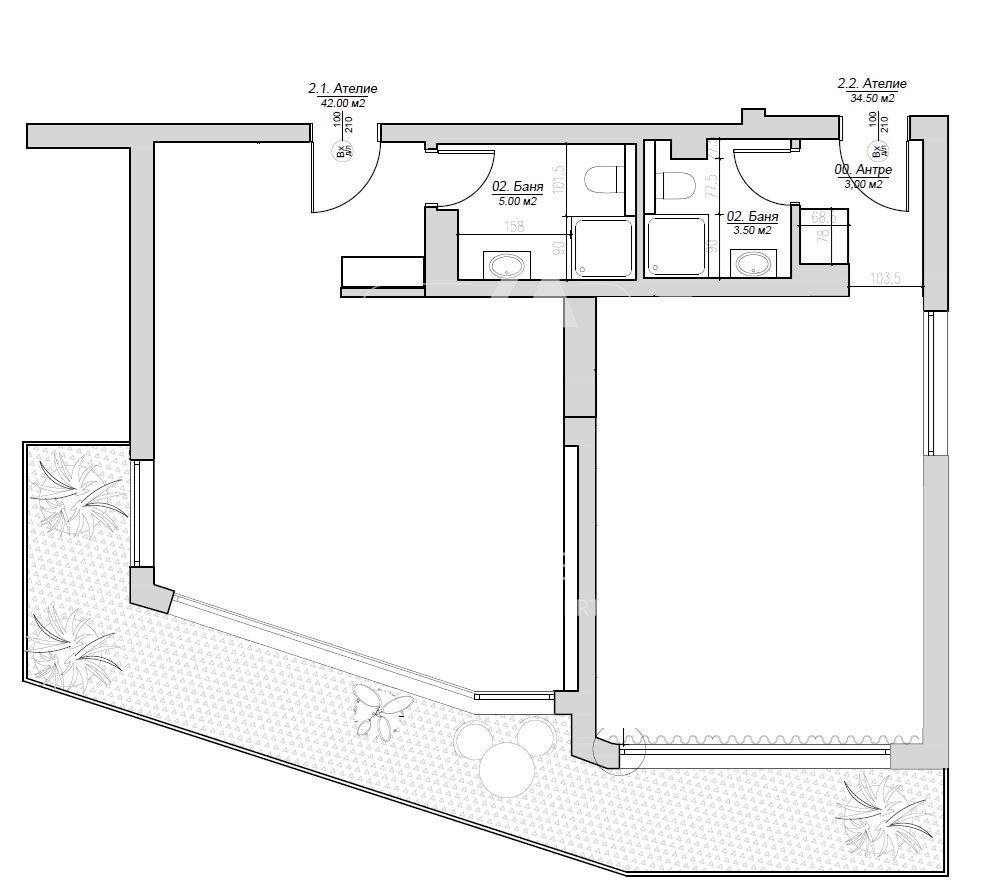
Имотът е със статут на ателие. Сградата е с Акт 16.
Местоположение:
+ бул. Цар Борис III 160
+ Близо до природен парк Витоша
+ Само на минути от центъра на София
Удобства в комплекса:
+ Зелени пространства с еко напояване
+ Зони за отдих и детска площадка
+ Панорамни тераси с гледки към планината и София
Характеристики на имота:
+ Застроена Площ: 42 м2
+ Градина: 16 м2
+ Широко централно помещение
+ Баня със санитарен възел
+ Градина с декинг и фантастични гледки към Витоша
Ниво на завършеност:
+ БДС стандарт
+ Блиндирана входна врата със секретна ключалка
+ PVC дограма с троен стъклопакет
+ Луксозни общи части с гранитогрес, метални парапети и дизайнерско осветление
+ Изградени връзки за отопление и климатизация
Паркомясто:
+ Опции за голямо подземно паркомясто с топла връзка
+ Лесно за маневри парко пространство
+ 34 860 евро
Допълнителни опции:
VISTATE предлага персонализирани интериорни проекти и завършване до ключ , реализирани от VIDESIGN и VIBRIX, част от Vaisman Investment Group.
Всички цени са с включен ДДС.
В сградата разполагаме и с други 2-стайни и 3-стайни апартаменти.
Свържете се с нас за повече информация или оглед!







