VISTATE има удоволствието да ви представи многостаен пентхаус в нова сграда пред Акт 15 в отличен район близо до метростанция България, на пешеходно разстояние от Южен парк и НДК. Доверен строител с богат опит, добра репутация, кратки срокове на изпълнение, високо качество на строителството и въвеждане на иновативни решения.
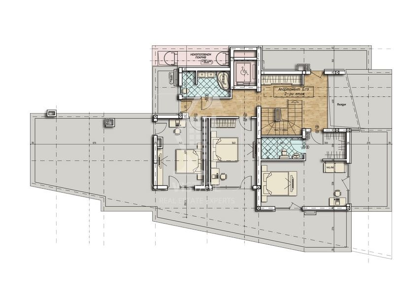
Впечатляващият имот се намира на осми и девети етаж и разполага с 316 кв.м. чиста застроена площ.
Предимства:
- Френски прозорци
- 3,10 м високи тавани
- Просторни гледки към Витоша планина
Отлично разпределение:
Ниво 1 - дневна с кухненски бокс и трапезария, санитарен възел, склад/мокро помещение, тераса.
Ниво 2 - спалня с дрешник, собствена баня и тераса с панорамна и необезпокоявана гледка към Витоша планина, две спални със споделена баня и балкон, просторна тераса с излаз от всички помещения.?
Цена по запитване.
VISTATE предлага всякакви услуги: Финансова и юридическа консултация, изготвяне на документация, консултация с нашите дизайнери по довършителни работи и обзавеждане; поддръжка и управление на имоти, и др.
VISTATE е Вашия доверен партньор за имотни решения.
Реф.376.







