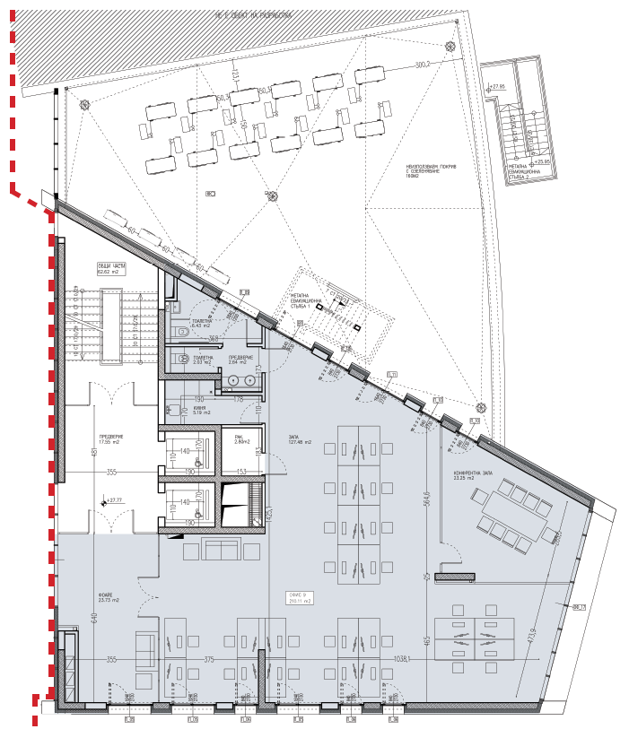
Предлагаме Ви самостоятелен, светъл и просторен офис, клас А , тип Open space , с възможност за вътрешно преоустройство и разпределение според нуждите и желанията Ви! Разположен на 9-ти етаж, с изложение юг/запад/изток/север, състоящ се от отворено работно пространство, кухненски бокс, санитарни помещения, сървърно помещение, излаз към тераса.
СТЕПЕН НА ЗАВЪРШЕНОСТ:
- Уникална за страната хибридна система за отопление и охлаждане от 'Immergas' във всеки офис, включваща хибриден-газов котел, термопомпа за възобновяема енергия, подови конвекторни тела, вентилация, която система допринася за до 35% по-висока енергоефективност и съответно по-ниски месечни разходи за отопление и охлаждане.
- Двоен под с настилка, цялостно окабеляване с поставени подови кутии.
- Завършени и обзаведени санитарни помещения с вградени структури от фирма Grohe .
- Стени с нанесени две ръце фина шпакловка.
'ГЕОСТРУКТ' ЕООД представя на Вашето внимание мултифункционална сграда с удобства, нови технологии и среда на живот и работа от най-висок клас!
Вентилируема окачена фасада от биоактивен камък с високи свойства на шумо и топлоизолация, която се самопочиства и поддържа с минимални разходи през дълги интервали от време. Външна топло и шумо изолация от каменна вата с дебелина от 10 см., подсигуряваща цялостна изолация от външната среда.
Тухлени зидове, изградени от керамични блокове на ' Wienerberger ' с най-висок коефицент на звукоизолация, пожарозащита, здравина, микроклимат, ниска равновесна влажност, екологичност и дълготрайност.
Вътрешна шумо и топло изолация изградена от минерална вата и гипсокартотени профили от най-висок клас на марките 'Isover' и 'Rigiprofil', допринасащя за цялостна изолация и от вътрешната среда в сградата!
Най-висок клас алуминиева дограма от 'Schüco' и Alumil , подсигуряваща освен висока степен на топлоизолация, но и на шумоизолация!
В сградата разполагаме с различни по големина офиси. Допълнителна възможност за закупуване на закрити паркоместа!
Подробна информация относно нашите проекти може да получите в сайта ни: https://geostruct.bg/;
За повече информация, среща или допълнителни въпроси, моля свържете се с нас на телефонен номер: +359 889 53 53 93!
Виж всички обяви в geostruct.bazar.bg или тук







