MНОГОСТАЕН апартамент от ИНВЕСТИТОР в сграда 'ЕСПОР ЦЕНТЪР', разположена на ъгъла на бул.България и бул.Тодор Каблешков!
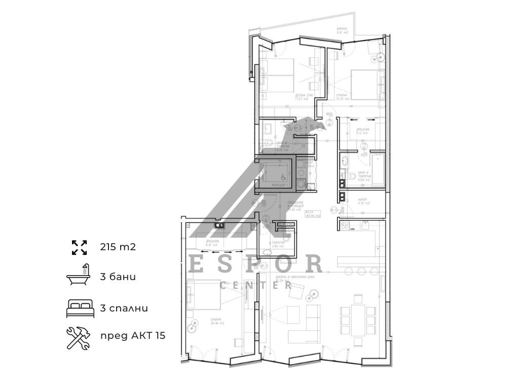
Представяме Ви многостаен апартамент А23 с обща площ от 215.32 кв.м на ОСМИ жилищен етаж с изложение ИЗТОК - ЗАПАД. Състои се от просторна дневна с кухненя и трапезария, от които се разкрива гледка към бул.България, три спални, една от които със собствен дрешник и санитарен възел, две отделни санитарни помещения и килер.
Имотът се предлага с интериорно решение, но може да бъде изготвен и проект спрямо предпочитанията на клиента.
Сграда 'ЕСПОР ЦЕНТЪР' е отличена с национална награда за качествено строителство и архитектура. Нашата цел е да осигурим на живущите максимален комфорт и уют, като залагаме на най-висок клас материали, с цел постигане на висока енергийна ефективност, топло и шумо изолация.
Завършена с вентилируема окачена фасада от биоактивен италиански камък от фирма Laminam , който осигурява дълъг експоатационен начин на живот. Външна топло и шумо изолация от каменна вата с дебелина от 10 см., подсигуряваща цялостна изолация от външната среда. Тухлени зидове 38 см, изградени с керамични блокове на 'Wienerberger' с най-висок коефицент на звукоизолация, пожарозащита, здравина, микроклимат, ниска равновесна влажност, екологичност и дълготрайност. Вътрешна тухлена зидария от 12 и 25 см в комбинация с минерална вата и гипсокартотени профили от най-висок клас на марките 'Isover' и 'Rigiprofil', допринасащя за цялостна изолация и от вътрешната среда в сградата! Поставена е най-висок клас алуминиева, седемкамерна дограма от 'Alumil' с троен стъклопакет, подсигуряваща освен висока степен на топлоизолация, но и на шумоизолация!
СТЕПЕН НА ЗАВЪРШЕНОСТ НА ИМОТА:
Апартаментът се издава с изградена уникална за страната хибридна система за отопление и охлаждане от 'Immergas', включваща хибриден-газов котел, термопомпа за възобновяема енергия, подово отопление и конвекторни-стенни тела, която система допринася за до 35% по-висока енергоефективност и съответно по-ниски месечни разходи за отопление и охлаждане. Положена е саморазливна замазка, предназначена за подово отопление. Санитарните помещения са с вградени универсални стенни структури от фирма 'Grohe'! Стените са с нанесени две ръце фина шпакловка, поставени ключове и контакти от фирма 'Legrand'.
Сградата разполага с три нива паркинг и предлагаме опция за закупуване на закрити паркоместа САМО за собственици на имот в обекта.
Компания 'Геострукт ЕООД' разполага с екип от професионалисти в сферата на интериорния дизайн и архитектурата. За максимално удобство на нашите клиенти предлагаме възможност за изготвяне на интериорен проект, довършителни дейности и завършване на имота до ключ.
Подробна информация относно технически предимства и всички свободни имоти може да получите в сайта ни: https://geostruct.bg/ или се свържете с нас на тел. +359 889 53 53 93!







