ARCO REAL ESTATE предлага мезонет в квартал Надежда 4 , на 300 метра от метростанция Бели Дунав .
Жилищна сграда с Акт 14 ,очаква се до края на годината акт 15 ,разположена в близост до бул Ломско шосе .
Сградата е със съвременен дизайн, висок клас изпълнение и функционална архитектура.
Възможност за покупка на двоен гараж , гаража е със самостоятелна партида на ток.
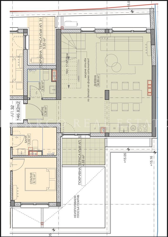
Апартамента е със следното разпределение :
Първо ниво- 56.8 кв. м.
-Дневна с трапезария и кухненски бокс-
-баня
-антре
-тераса
-мазе включено в цената
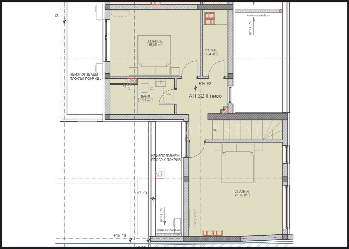
Второ ниво-69.7кв.м.
-голяма спалня
-малка спалня
-три тераси
Към апартамента има 2 покривни тераси с около 30 кв.м. площ,които не влизат в описаната площ .
Жилището е с площ 146 кв.м. с включени общи части и 126 кв.м застроена площ, разположен е на 5 и 6 жилищен етаж от 6 .
Подземният гараж е на ниво -1 и е на цена от 60 хиляди евро за двоен гараж .
Апартамента се продава на шпакловка и ще бъдат монтирани входни врати . Също така се предлага и възможност за довършителни работи .
Агенцията работи по стандарт за качество БДС EN 15733.
Съдействие за ипотечно кредитиране и пазарна оценка на имота.
За допълнителна информация и огледи: Димитър Тасев , тел.0876 297 809







