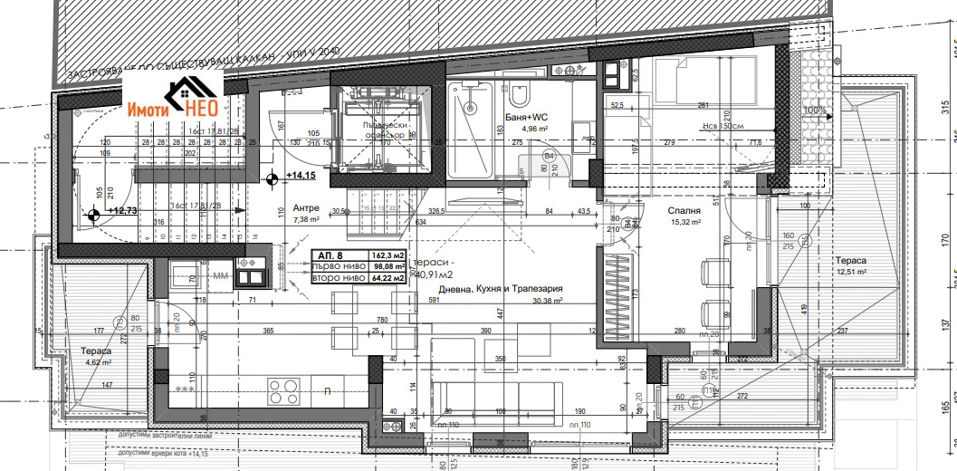
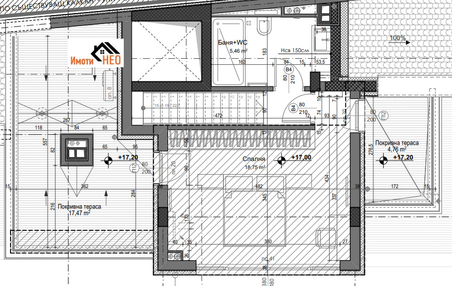
Апартаментът е с АКТ 16 от декември 2024 г. Чистата жилищна площ 165.85 кв.м. а с общите части 200.95 кв.м. На първо ниво са разположени дневна 31 кв.м. с тераса пред нея, спалня с тераса, баня и тоалетна. На второ ниво има една спалня, баня и тоалетна, голяма тераса 17 кв.м. и втора по-малка тераса. Апартаментът е единствен на етажа и асансьора стига до апартамента.
Има възможност за закупуване на паркомясто или гараж.
Виж всички обяви в imotineo.bazar.bg или тук
        
       
         
         
         
         
         
         
         
         
         
         
         
         
             
             
             
             
             
             
             
             
             
             
             
            




