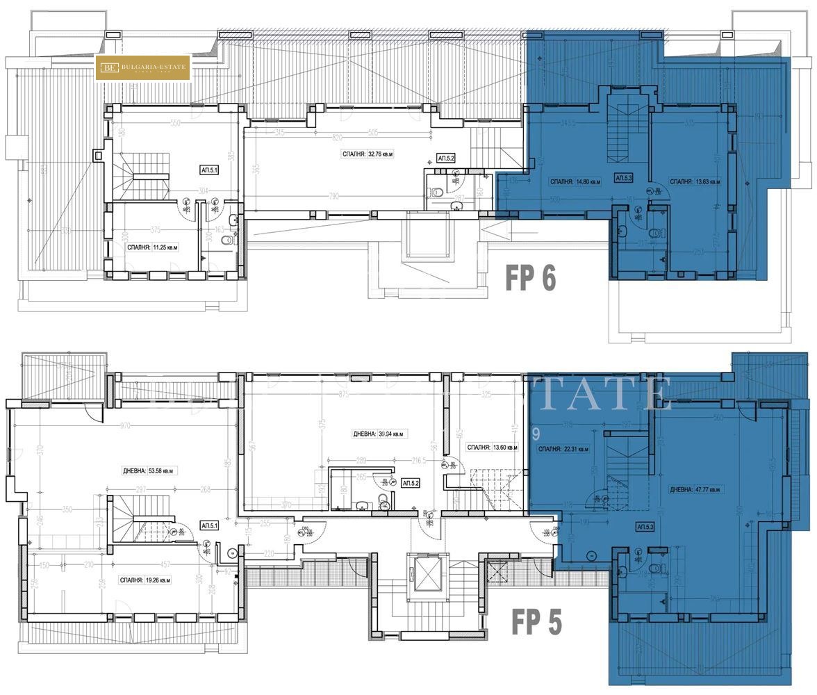
Bulgaria Estate представя впечатляващ мезонет 🏢, разположен на 5-ти и 6-ти етаж, съчетаващ простор, функционалност и усещане за истински лукс 💎
Жилището е разпределено на две нива, осигуряващи удобство и ясно обособени зони за живот и отдих:
🔹 Първо ниво:
🛋️ Просторна дневна с кухня и трапезария
🛏️ Спалня
🚿 Баня с тоалет
📦 Килер
🧺 Перално помещение
🌅 Тераса
🔹 Второ ниво:
🎨 Творческо помещение / кабинет
🛏️ Две спални
🚿 Баня с тоалет
🌅 Тераса
Сградата е бутикова и се отличава с висок клас изпълнение на общите части 🏛️, модерна архитектура и внимание към всеки детайл, създаващи усещане за престиж и комфорт 🌟
Този имот е идеален избор за хора, търсещи пространство, стил и функционалност, както за лично ползване 🏡, така и като дългосрочна инвестиция 📈







