ОФЕРТА БЕЗ АНАЛОГ!!!🏡 Двустаен апартамент с паркомясто в нова красива сграда, гр. Варна. АКТ 14 ОКТОМВРИ 2025г! ДОКАЗАН СТРОИТЕЛ В ГРАДА!
📌 Основни характеристики:
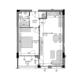
✔ Площ: 63 кв.м.
✔ Изложение: Юг ☀
✔ Паркомясто: към апартамента се продава и подземно паркомясто на цена 17000 ЕВРО с обща площ 20.17 кв.м, което включва 16.42 кв.м чиста площ и 3.75 кв.м общи части. (МОЖЕ ДА СЕ ЗАКУПИ ОТДЕЛНО)
🏗 Строителни етапи:
🔹 Акт 14 (груб строеж): Откомври 2025!!
🔹 Акт 15 (завършване на строителството): 31.12.2026 г.
🔹 Разрешение за ползване: до 3 месеца след Акт 15
🏗 Строителство и характеристики на сградата:
✔ Конструкция: Стоманобетонна, осигуряваща устойчивост и дълготрайност 🏗
✔ Стени: Висококачествени тухли с топло- и шумоизолация 🧱
✔ Фасада: Модерна вентилируема система за енергийна ефективност 🎨
✔ Общи части: Луксозно завършени с висококачествени материали ✨
✔ Асансьор: ORONA Безшумен и модерен за удобство на живущите 🚪
✔ Сигурност: Видеонаблюдение и контрол на достъпа 🔐
Завършване на апартамента:
✔ вътрешни стени тухла с гипсова мазилка;
✔ тавани гипсова мазилка
✔ под на стаи циментова замазка;
✔ баня тоалет: под циментова замазка, стени вароциментова мазилка;
✔ ел. инсталация: завършена напълно до ключове, контакти, оптичен кабел до апартамент;
✔ В и К инсталации: завършени до тапа;
✔ Изграждане на тръбни връзки, осигуряващи възможност за монтаж на климатици, на определени по архитектура места.
✔ Външна врата блиндирана с облечена декоративна каса;
✔ Прозорци:Висококачествена PVC дограма 5 или 6 камерна с двойни стъклопакети ширина 30 мм, 4 мм четири сезона/ 4 мм бяло флоатно стъкло, подпрозоречни первази.
🎯 Перфектен избор за:
✔ Индивидуално ползване за уютен дом с прекрасна гледка 🏠
✔ Инвестиция с висок потенциал за отдаване под наем 📈
📞 За повече информация и огледи, свържете се с нас! 📩



