* монолитна стоманобетонна конструкция, външни стени керамични тухли
* 5 камерна PVC дограма с двоен стъклопакет
* 10см топлоизолация
* фасада с HPL панели/полимерна мазилка
* тераси - гранитогрес
* хидравлични асансьори с капацитет за 8 и 6 човека
* общи части - алуминиеви парапети и гранитогрес
* битумна мембрана за хидроизолация.
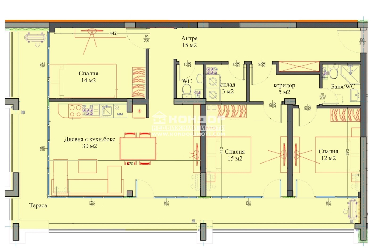
Жилището е многостайно, състои се от светла и югоизточна дневна 30 кв.м. с кухненска част и трапезария, три големи самостоятелни спални: две детски 12 и 14кв.м. и родителска 15кв.м., баня с тоалетна, втора тоалетна, склад/перално, широко входно антре с място за гардероб и една панорамна тераса с достъп от всички стаи. Апартаментите се издават на шпакловка и замазка с възможност за завършване до ключ срещу допълнително заплащане. Двете сгради имат самостоятелен подземен паркинг, между тях е обособено богато озеленено парково пространство с детски площадки, осигуряващо спокойна и просторна среда за отдих. Комплексът е разположен до големи пътни артерии даващи възможност за бърз достъп до всяка точка на града. Предлагаме няколко варианта за разсрочено плащане, обвързано с етапите на строителство и съдействие за получаване на банков кредит.ВИЖТЕ ОЩЕ ИЗГОДНИ ОФЕРТИ НА https://www.kondorimoti.com/ С ЕЖЕДНЕВНА АКТУАЛИЗАЦИЯ!
Виж всички обяви в kondor.bazar.bg или тук







