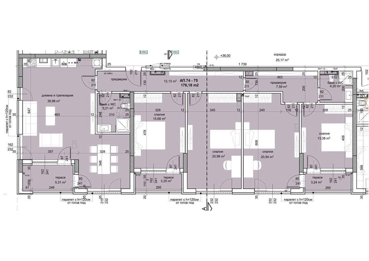
Жилището разполага с 4 просторни спални, дневна зона от 40 кв.м с впечатляващи френски прозорци, 2 бани, 3 тераси, както и възможност за обособяване на допълнителна баня и гардеробно помещение.
Площ, светлина и функционалност в мащаб, който липсва в новото строителство.
Изложение юг + запад, гарантиращо естествена светлина от изгрев до залез и панорамни гледки към Родопите, които трудно могат да бъдат описани с думи или пресъздадени на снимка.
Предлага се на шпакловка и замазка идеалната база за завършване според индивидуален вкус, висок стандарт и авторски интериор.
Локацията е непосредствено до парк Лаута, със широки булеварди, нисък трафик и отлична пешеходна инфраструктура.
Цена без аналог на пазара за жилище с този мащаб и Акт 16.
Имот за хора, които избират пространство, комфорт и дългосрочна стойност.
Опция за закупуване на паркомясто .
Виж всички обяви в prima_casa.bazar.bg или тук



