МЕСТОПОЛОЖЕНИЕ: Квартал Тракия е един от живописните и желани райони за живеене в Пловдив, като предлага комбинация от удобства, съвременен начин на живот и зеленина. Локацията на имота е с отлична инфраструктура, пешаходни и вело алеи, паркове и широки булевари с много добре развита транспортна мрежа.
СТРОИТЕЛСТВО: Апартаментът се намира на 2-ри етаж, в новостроящ се жилищен комплекс.
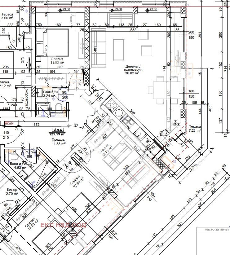
РАЗПРЕДЕЛЕНИЕ: Жилището разполага с площ от 139 кв.м., разпределена в преддверие, просторна дневна с кухненски бокс, три спални, две бани с тоалетни, килер и тераса.
СЪСТОЯНИЕ: В строеж!
СХЕМА НА ПЛАЩАНЕ:
35% при подписване на предварителен договор
35% на акт 14
30% на акт 15 и прехвърляме на акт 15
Заповядайте да Ви го покажем. Използвайки нашите услуги Вие ще превърнете закупуването на новия си дом в едно приятно изживяване, ще получите персонален консултант, съдействие при кандидатстване за кредит от всички банки в България, интериорни дизайнери и екип, който да се погрижи за нужните документи по Вашата сделка. На Ваше разположение сме всеки ден, от понеделник до неделя от 09:00 до 20:00ч. Възползвайте се от безплатна консултация в наш офис, където ще ви спестим време и ще ви запознаем с всички актуални имоти в България, отговарящи на Вашето търсене. Свържете се с нас на 0887779990 или на 0884060990 и цитирайте кода към имота: 1140- 33398
Виж всички обяви в xnvd_plovdiv.bazar.bg или тук







