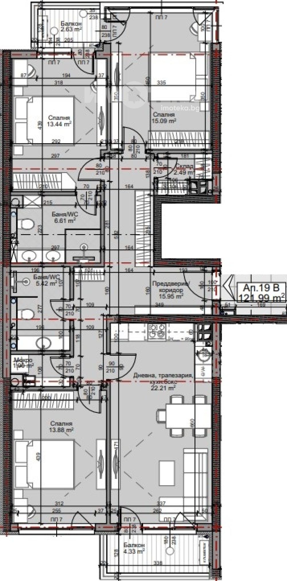
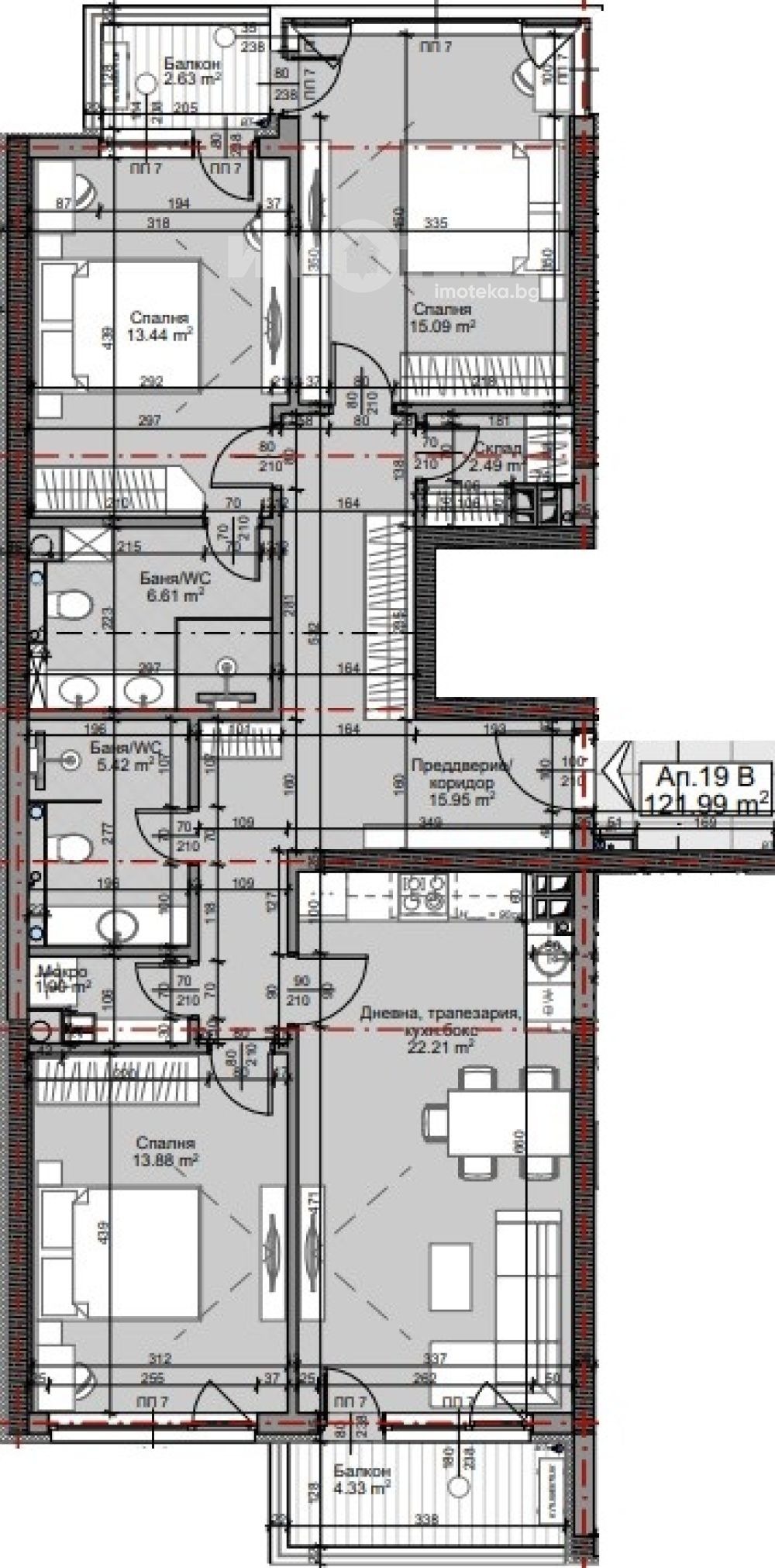
Функционален четиристаен апартамент, ВЕЧЕ С АКТ 14. Разположен е на пети етаж. Състои се от: хол с трапезария и кухненски бокс с площ 22.21 кв.м., три спални от 13.88 кв.м., 15.09 кв.м. и 13.44 кв.м., две санитарни помещения, два балкона, мокро помещение и склад. Изложенията са запад и изток. Има възможност за покупка на гараж или паркомясто.
Намира се на изключително комуникативно място до Околовръстен път и бул. 'Александър Малинов', срещу Бизнес парк 'София'. Близо до много магазини, офиси, фитнес зали и метростанция 'Бизнес парк'. На метри от сградата се строи спортна зала. Предстои и изграждане на ново училище.
Изискана сграда на девет етажа. Срокът за завършване на проекта е краят на 2026 година.
Отлична сграда. Метростанция. Инвеститор с много завършени сгради.
Обади се сега и цитирай този код 593277







