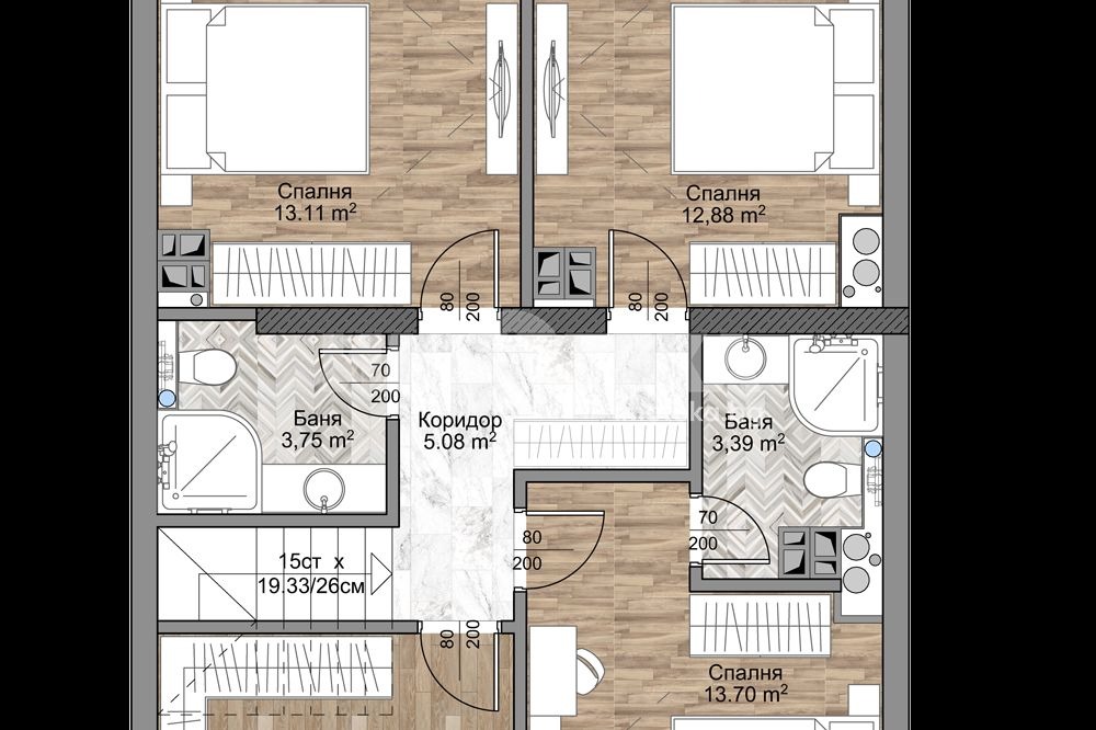
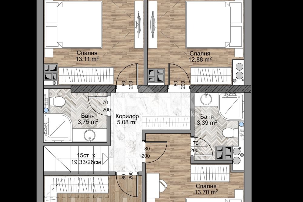
ВЕЧЕ С АКТ 14 Функционален мезонет, разположен на девети и десети етаж. Състои се от: първо ниво: преддверие, хол с трапезария и кухненски бокс с чиста площ 44.51 кв.м., спалня 12.92 кв.м., гардеробно помещение, две санитарни помещения, склад и южна тераса; второ ниво: три спални с чиста площ 13.11 кв.м., 12.88 кв.м. и 13.70 кв.м., кабинет от 10.69 кв.м., две санитарни помещения и тераса. Изложенията са юг, север, изток. Има възможност за покупка на гараж или паркомясто.
Намира се на изключително комуникативно място до Околовръстен път и бул. 'Александър Малинов', срещу Бизнес парк 'София'. Близо до много магазини, офиси, фитнес зали и метростанция 'Бизнес парк'. На метри от сградата се строи спортна зала. Предстои и изграждане на ново училище.
Изискана сграда на девет етажа. Срокът за завършване на проекта е краят на 2026 година.
Отлична сграда. Метростанция. Инвеститор с много завършени сгради.
Обади се сега и цитирай този код 594999







