Агенция за недвижими имоти ХОУМ ФОР Ю има голямото удоволствие да ви представи за продажба многостаен апартамент 5+6 в новострояща се, луксозна сграда в затворен комплекс в жк. Струмско гр. Благоевград.
Сградата се намира на много комуникативно място:
- на 250 м. от детска градина Първи юни
- на 350 м. от магазин СТОМИ
- на 450 м. от спирката на градския транспорт за линия 2
- на 500 м. от СУ Иван Вазов
- на 500 м. от магазин Мосю Бриколаж и Техномаркет
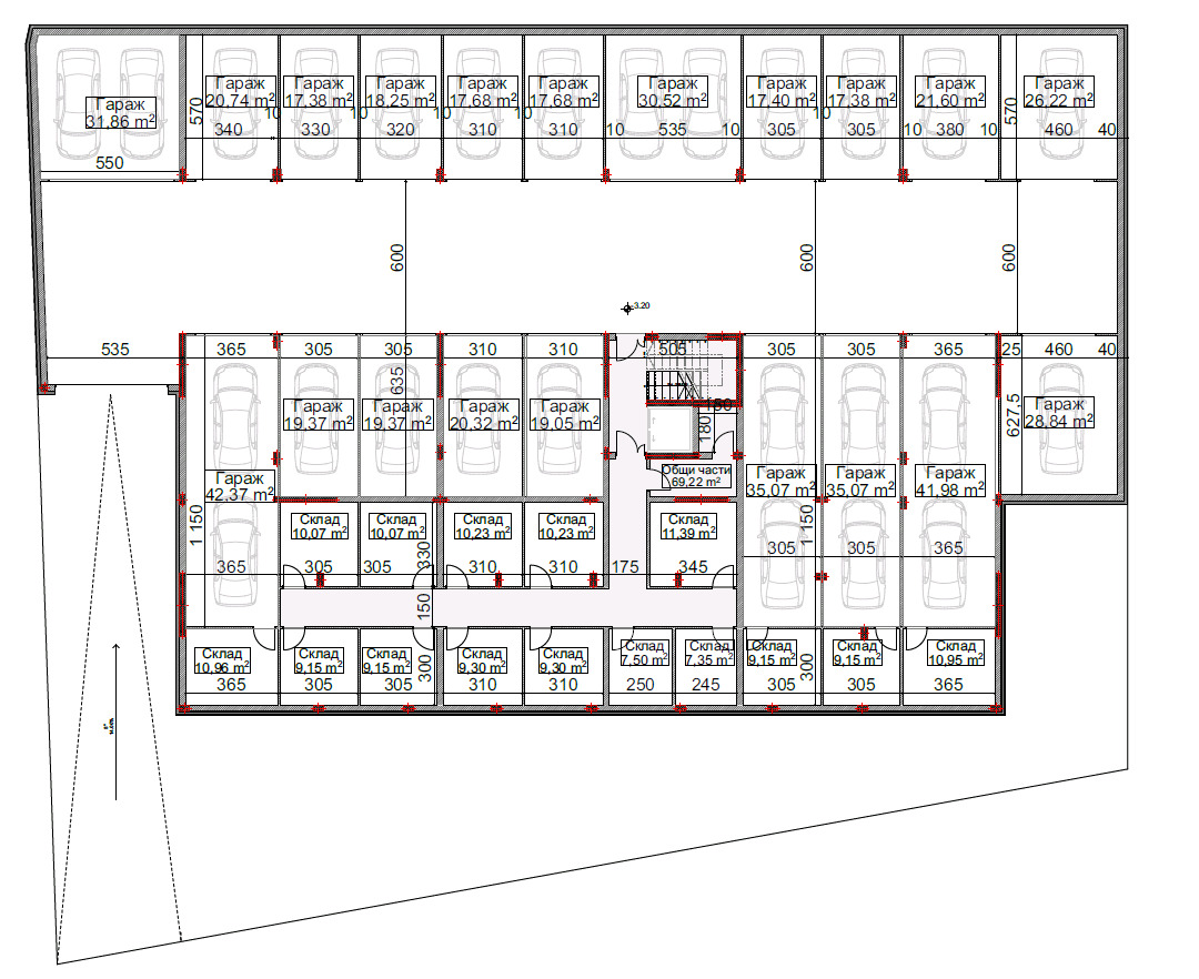
Сградата се състои от: модерен безшумен асансьор, сутерен с гаражи и мазета, партерен етаж с апартаменти с дворно място /градина/ и три жилищни етажа.
Вашият нов ДОМ се намира на КОТА +/- 0.00 на партерен етаж със северо-западно изложение.
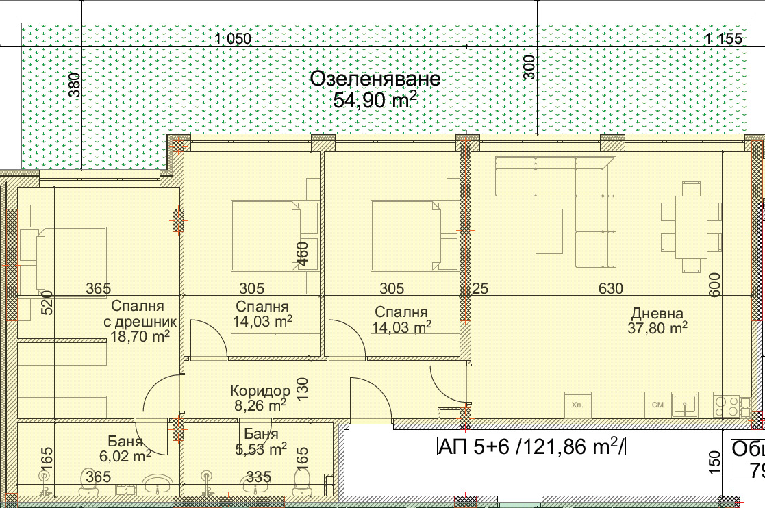
Застроената му площ е 121,86 кв.м. + 17,82 кв.м. общи части, което се равнява на 163,92 кв.м. обща площ + 54,90 кв.м. двор /градина/ = 194,58 кв.м. допълнително може да закупите и мазе на цена от 620 на кв.м.
Със следното вътрешно разпределение на стаите и тяхната полезна (светла) площ:
- коридор с площ 8,26 кв.м.
- баня с тоалетна с площ 5,53 кв.м.
- спалня с дрешник с площ 18,70 кв.м.
- спалня с площ 14,03 кв.м.
- баня с тоалетна с площ 6,02 кв.м.
- спалня с площ 14,03 кв.м.
- дневна с кухненски бокс с площ 37,80 кв.м.
- градина с площ 54,90 кв.м.
Жилището ще бъде завършено по БДС и ще се предаде в следния завършен вид:
- тухли Wienerberger Porotherm 25
- ПВЦ дограма 6 камерна 4 сезона с високоенергиен двоен стъклопакет с К-а стъкло за запазване на температурата в помещенията.
- топлоизолационна система Baumit Pro EPS (експандиpан полистирен) 10 см. и полимерна мазилка
- луксозни общи части с плочки и декоративни PVC плоскости на стените
- стени и тавани: фина гипсова мазилка на Knauf
- изводи за климатици във всяка стая
- под: циментова замаска
- ел. до точка
- ВиК до тапа
За ваша сигурност, спокойствие и удобство за новия Ви ДОМ, предлагаме да закупите подземен гараж на цена от 720 на кв.м., за да не се налага всеки ден да обикаляте и да търсите място на което да паркирате автомобила си.
ГЪВКАВА СХЕМА НА ПЛАЩАНЕ:
- 30 % - първоначална вноска
- 40 % на АКТ 14
- 20 % на АКТ 15
- 10 % на АКТ 16
ЕТАП НА СТРОИТЕЛСТВОТО: В СТРОЕЖ!!!
ПЪРВА КОПКА - 17.06.2025г.
АКТ 14 - до месец април 2026г. (това е документът за приемане на конструкцията на сградата, който се издава, когато сградата достигне етап груб строеж)
АКТ 15 - до месец февруари 2027г. (това е документът, с който се констатира, че сградата е напълно завършена)
АКТ 16 - до месец юни 2027г. (това е документа, с който сградата се въвежда в експлоатация или по просто казано годна за живеене )
Жилището очаква своите нови собственици, които ще го стопанисват и превърнат в техен дом!
За да получите повече информация за предлаганата от нас оферта може да ни се обадете на посочените телефони за връзка!
Екипът от професионалисти на ХОУМ ФОР Ю ще Ви помогне да сбъднете мечтите си и да ги превърне в реалност, като ви съдейства НАПЪЛНО БЕЗПЛАТНО при кандидатстването за жилищен кредит с ПРЕФЕРЕНЦИАЛНИ УСЛОВИЯ от най-големия кредитен консултант в България КРЕДИТ ЦЕНТЪР!
Ако предлаганият апартамент ви е харесал и представлява интерес за вас, не се колебайте да се свържете с наш брокер, за да резервирате час за оглед в удобно за вас време!
Заповядайте в нашият офис на бул. Кирил и Методий 29 Б за безплатна консултация с нашите професионалисти, които ще ви обърнат специално внимание, като ви запознаят с пазара на недвижими имоти и ви помогнат с избора на ново жилище според вашите изисквания!
Новият Ви ДОМ е точно тук!
Защото с нас мечтите стават реалност!
РЕФЕРЕНТЕН 6368







