Агенция за недвижими имоти ХОУМ ФОР Ю има голямото удоволствие да ви представи за продажба тристаен апартамент в новострояща се сграда във вход А ап. 7 в гр. Благоевград на ул. Славянска близо до болница ПУЛС .
Сградата се намира на много комуникативно място в близост до училище, детска градина, спирки, магазини и заведения и се състои от: модерен безшумен асансьор, сутерен с гаражи и мазета, партерен етаж - търговски помещения и пет жилищни етажа.
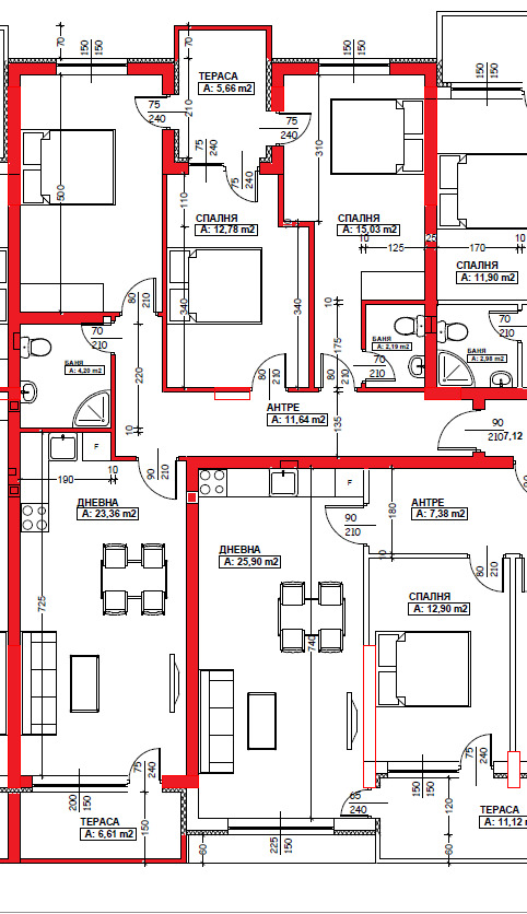
Вашият нов ДОМ се намира на КОТА + 3,40 на 1-ви жилищен етаж с изложение север/юг и застроена площ от 109.60 кв.м. + 12.26 кв.м. общи части, което се равнява на 121.86 кв.м. обща площ, ведно с прилежащо мазе.
Със следното вътрешно разпределение на стаите и тяхната полезна (светла) площ:
- входно антре с площ 11.64 кв.м.
- баня с тоалетна с площ 4.20 кв.м.
- дневна с площ 23.36 кв.м.
- спалня 1 с площ 12.78 кв.м.
- спалня 2 с площ 15.03 кв.м.
- спалня 3 с площ 15.23 кв.м.
- тераса 1 с площ 5.66 кв.м.
- тераса 2 с площ 6.61 кв.м.
Жилището е завършено по БДС и се предава в следния завършен вид:
- стени и тавани: фина гипсова мазилка (турбозол) Рьофикс
- под: циментова замазка
- ПВЦ дограма 6 камерна 4 сезона двоен стъклопакет
- блиндирана входна врата
- ел. до точка
- ВиК до тапа
За ваша сигурност, спокойствие и удобство за новия Ви ДОМ, предлагаме да закупите и подземно парко място или гараж, за да не се налага всеки ден да обикаляте и да търсите място на което да паркирате автомобила си.
ЕТАП НА СТРОИТЕЛСТВОТО: В СТРОЕЖ!!!
АКТ 14 - до края на октомври 2025г. (това е документът за приемане на конструкцията на сградата, който се издава, когато сградата достигне етап груб строеж)
АКТ 15 (това е документът, с който се констатира, че сградата е напълно завършена)
АКТ 16 - до края на 2026г. (това е документа, с който сградата се въвежда в експлоатация или по просто казано годна за живеене )
Жилището очаква своите нови собственици, които ще го стопанисват и превърнат в техен дом!
За да получите повече информация за предлаганата от нас оферта може да ни се обадете на посочените телефони за връзка!
Екипът от професионалисти на ХОУМ ФОР Ю ще Ви помогне да сбъднете мечтите си и да ги превърне в реалност, като ви съдейства НАПЪЛНО БЕЗПЛАТНО при кандидатстването за жилищен кредит с ПРЕФЕРЕНЦИАЛНИ УСЛОВИЯ от най-големия кредитен консултант в България КРЕДИТ ЦЕНТЪР!
Ако предлаганият апартамент ви е харесал и представлява интерес за вас, не се колебайте да се свържете с наш брокер, за да резервирате час за оглед в удобно за вас време!
Заповядайте в нашият офис на бул. Кирил и Методий 2 за безплатна консултация с нашите професионалисти, които ще ви обърнат специално внимание, като ви запознаят с пазара на недвижими имоти и ви помогнат с избора на ново жилище според вашите изисквания!
Новият Ви ДОМ е точно тук!
Защото с нас мечтите стават реалност!
РЕФЕРЕНТЕН 7146







