4-СТАЕН !!! 193 КВ.М !!! К-С АЗУР ПАНОРАМА !!! ДО КЛЮЧ !!!
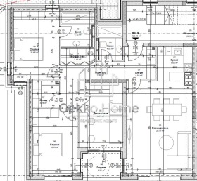
Гекко Хоум предлага за продажба страхотен четиристаен апартамент в к-к.Св.Константин и Елена, гр. Варна. Апартаментът е част от един от най-модерните и луксозни жилищни комплекси по северното черноморие, а именно Азур Панорама построен през 2023 г. Жилището разполага с цели 160 м2 чиста жилищна площ, които включват светла и просторна дневна, три спални и две бани с тоалетна. Завършено е до ключ с подови настилки и интериорни врати. Дневната е обзаведена с модерна кухненска мебел изработена по поръчка и качествени електроуреди. Баните са завършени и оборудвани с висок клас материали. От дневната има излаз на голям балкон с изглед към морето. Също така към имота има прилежаща озеленена тераса с площ 46 кв.м с излаз от всички стаи, която може да бъде превърната в страхотна лятна градина. Към имота може да бъде закупено закрито паркомясто.
Комплекс Азур Панорама разполага със СПА център, закрит басейн, фитнес и йога зала, ресторанти, кафене, магазини, супермаркет, детска площадка и изцяло подземни паркинги и гаражи.
За повече информация позвънете на посочения телефон и цитирайте код: 1985



