4-СТАЕН !!! 140 М2 !!! ПРОСТРАНСТВО И ФУНКЦИОНАЛНОСТ !!! ОТЛИЧНА ЛОКАЦИЯ !!!
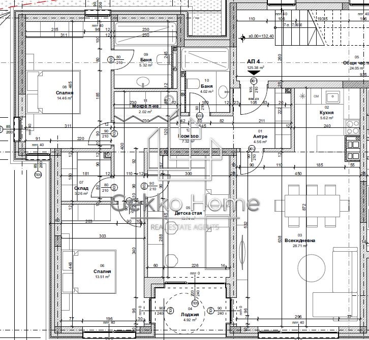
Гекко Хоум предлага за продажба функционален 4-стаен апартамент в м-т Долна Трака, гр. Варна. Жилището ще бъде разположено изцяло южно, на 2-ри етаж от 4 в модерна и компактна жилищна сграда, състояща се от само 10 на брой апартамента. Със своите 140 м2 площ, имотът разполага с входно антре, просторна дневна с кухненски кът 35 м2 и излаз на лоджия, две сплани по 14 м2 също с излаз към лоджията, трета спалня 15 м2 със самостоятелна баня и тоалетна, втора баня с тоалетна, отделно мокро помещение, както и склад, който може да бъде обособен като дрешник. Към апартамента има и прилежащо складово помещение. Към апартамента могат да бъдат закупени едно или повече паркоместа.
Сградата е на изключително аткративна локация, съчетаваща едновременно удобство, тишина и спокойствие. Само на 500 м от главен път и с отличен достъп по асфалтова улица. На 10 минути от идеалния център на града, както и на няколко минути от плажа.
Проектът ще бъде изпълнен от доказан инвеститор, който държи на качеството и вниманието към детайлите.
Имот, който заслужава вашето внимание.
За повече информация позвънете на посочения телефон и цитирайте код: 1988







