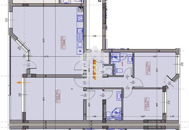
ЕРА Лайф обявява за продажба четиристаен апартамент с площ 155,84 м2 (застроена площ 131,78) м2, разположен на втори етаж от шест в новострояща се жилищна сграда. Имотът е със следното разпределение: вх. антре, дневен тракт с открит кухненски бокс с излаз на тераса - 36,78 кв.м., три спални - 10,49 кв.м., 11,71 кв.м. и 20,94 кв.м., два санитарни възела. Вж раздел 'План'. Жилището е със статут на апартамент.
Изложение: изток. Вид на завършеност на жилището: БДС стандарт, стени - мазилки, шпакловка и грунд, тавани - мазилка, шпакловка и грунд, входна врата с метален обков, пет камерна PVC дограма, марка 'ВИВАПЛАСТ', ел. инсталации - контакти и фасунги, ВиК на тапи.
Отопленето ще бъде с електричество. Схемата на плащане е: първоначална вноска 80% на предварителен договор, 10% на външна мазилка и 10% на Акт 16. Паркирането е свободно в района, като има възможност за закупуване на подземен гараж или открито паркомясто.
Обявеният за продажба апартамент е в сграда, която ще бъде въведена в експлоатация 2027г. В строителството на сградата са заложени качествени материали.
Район с отлична инфраструктура - в близост до главни пътни артерии, автобусни спирки на градския транспорт, магазини, голям търговски център, професионални гимназии и училища, детски градини и ясли. Имотът е отличен както за живеене, така и за инвестиция. Код: 07078403
Оферта 0708403







