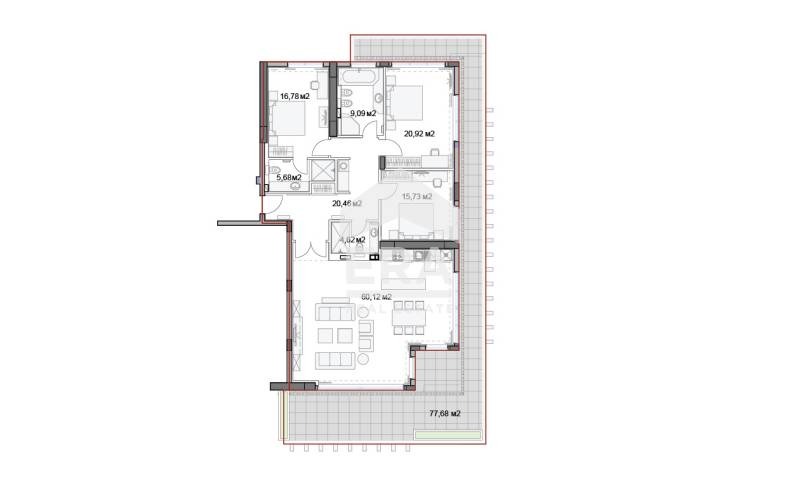
Ера Лайф обявява за продажба елегантен четиристаен апартамент с площ 179,82 м2 (застроена площ 297,80 м2), разположен на четвърти етаж от осем в луксозен затворен комплекс на метри от плажната ивица. Имотът е със следното разпределение: антре (20,46) м2, дневен тракт с кухненска част (60,12) м2 с прекрасен изглед към морския бряг, 3 спални ( 16,78 )м2 със собствен санитарен възел 6,80 м2 - преходна спалня с дневния тракт 20,92 м2 със собствен санитарен възел 6,67 м2 и 15,73 м2) , една панорамна тераса 77,68 м2 , ведно с прилежащо мазе (8,26) м2. Вж раздел 'План'. Статут: апартамент. Към апартамента се полага паркомясто, чиято цена е включена в таксата за поддръжка и управление на комплекса. (14E/м2 на годишна база).
Жилището се намира в сграда със съвременна архитектура на брега на морето. В строежа са вложени най-висок клас материали и качествено изпълнение. Луксозните стълбища и общи части имат изградени вентилация, канализационна инсталация, включваща инсталация за отводняване на климатичните тела, пожароизвестителна инсталация, заземителна инсталация, надеждна електро инсталация с висока степен на защита. Предвидено е дежурно и евакуационно осветление. Отоплението, вентилацията и климатизацията в сградата са осигурени чрез напълно изградена инверторна VRV климатична система с охлаждане и отопление на фирма DAIKIN, с директно изпарение, с монтирани вътрешни тела за скрит таванен монтаж.
Сградата е изпълнена с вентилируема фасада с топлоизолация от минерална вата, а плоския покрив е топло, паро и хидро изолиран, което гарантира качество и дълготрайност. Прозорците са реализирани със стъклопакети висок клас алуминиева дограма Sch?co. Три броя панорамни асансьори на водещия световен производител Schindlеr са на разположение на живущите.
Имотът е подходящ за целогодишно живеене. Съчетанието от естествен парк с дървесни видове и красива плажна ивица, правят уникално предложението за продажба на този апартамент. Предлага се с цялото налично обзавеждане и оборудване.
Разположен в малък тих залив с източно изложение, комплекса предлага великолепни условия за развлечения и отмора. Само на 8 км. южно от Златни пясъци, на 10 км. от град Варна и на 16 км. от Летище Варна, комплексът съчетава в себе си добра локация и приказно място за релакс. Комплекс Sunny Day е разположен между естествен парк с редки дървесни видове и красива плажна ивица. Код: 0706085
Оферта 0706085







