ЦЕНИ ОТ ИНВЕСТИТОР
Премиум пентхаус с 3 спални и панорамна тераса над кв. Бриз
Търсите безкомпромисно пространство и спокойствие? Предлагаме ви изключителен многостаен апартамент в нова бутикова сграда, разположена в най-чистата и панорамна част над морските квартали на Варна.
Основни характеристики на имота:
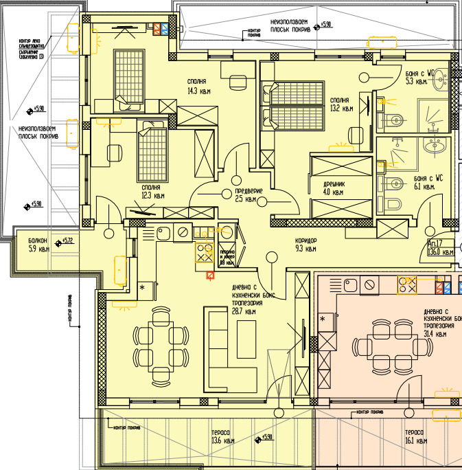
Просторна дневна: 28.7 кв.м. с обособени зони за релакс и хранене.
Три комфортни спални: Съответно 14.3 кв.м., 13.2 кв.м. и 12.3 кв.м. без преходност и с правилни форми.
Две големи бани: Една от 5.3 кв.м. и втора от 6.1 кв.м., осигуряващи пълен комфорт за голямо семейство.
Собствен дрешник: 4.0 кв.м. към една от спалните.
Огромна панорамна тераса: 13.6 кв.м. вашето място за морски изгреви, плюс допълнителен балкон от 5.9 кв.м.
Защо този имот е специален?
✅ Максимална уединеност: Разположен така, че да осигурява тишина и малък брой съседи.
✅ Локация: В зеления пояс на града далеч от шума и трафика, но само на 5 минути от главни пътни артерии.
✅ Светлина и панорама: Обграден от открити пространства, гарантиращи изобилие от естествена светлина през целия ден.
Имотът е подходящ за ценители на широкото и качествено строителство.
Референтен номер: 14904
Контакти: 0887 222 477
Милен Георгиев







