ДИРЕКТНО ОТ ИНВЕСТИТОР, С ВЪЗМОЖНОСТ ЗА ЗАВЪРШВАНЕ ДО КЛЮЧ!
Представяме Ви двустайни, тристайни и четиристайни апартаменти в тухлена сграда пред акт 16, с отлична локация в централната част на София, в непосредствена близост до СМГ, бул. Васил Левски и катедралата Св. Александър Невски , с удобен достъп до разнообразен градски транспорт и всички ключови точки на града. Впечатляваща архитектура, съчетаваща класическата градска естетика със съвременните технологии. Отличен избор, както собствен дом, така и за инвестиция.
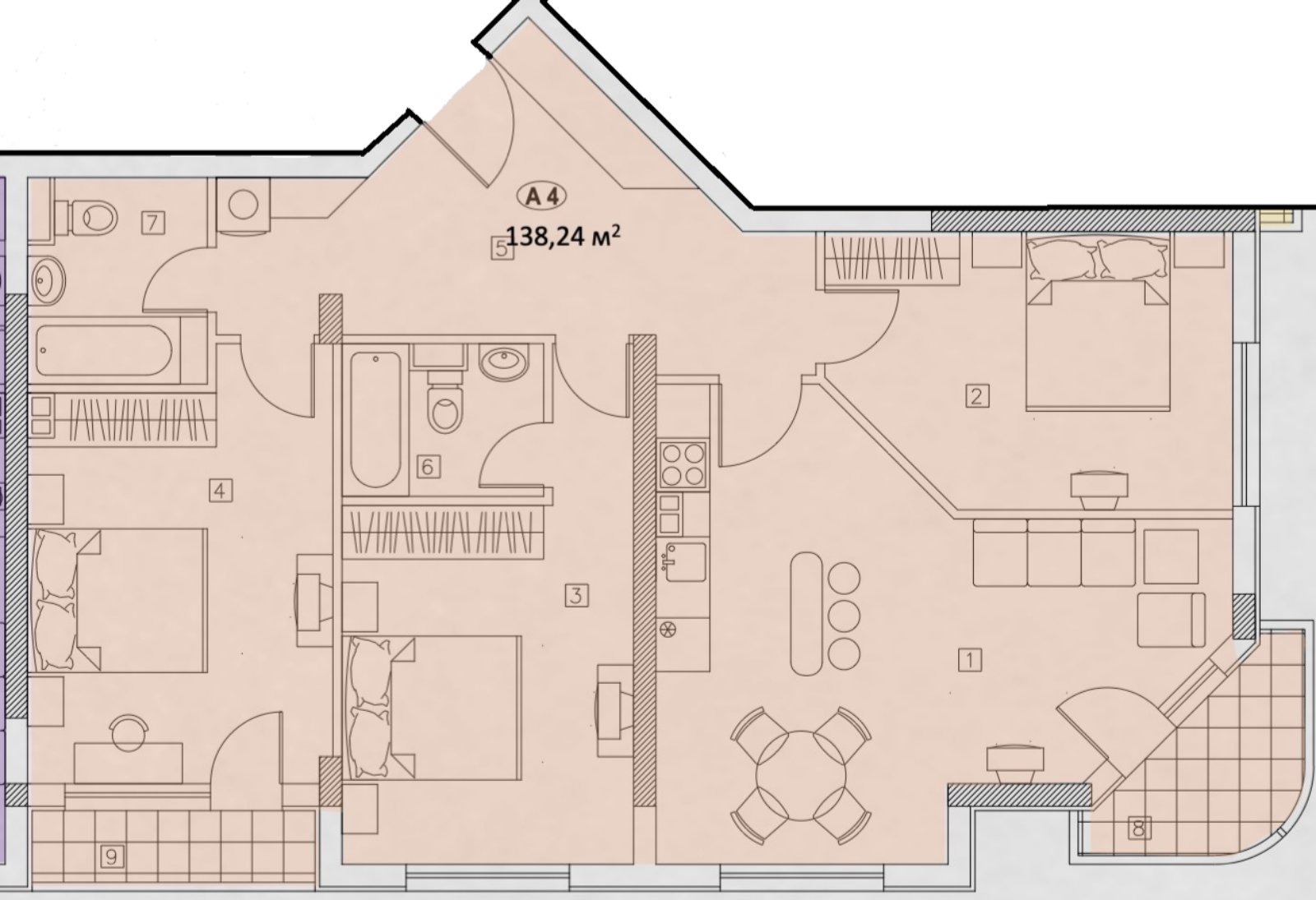
Апартамент 4 е четиристаен разположен на 2-ри етаж от общо 7 и е с площ от 138,24 кв.м., а разпределението му е следното: Входно антре, всекидневна с кухненски бокс хол, 3 спални, 2 бани с тоалетна и 2 балкона. Изложението е югоизточно.
Удобства и допълнителни екстри:
- Подземен паркинг със сутеренно ниво
- Фитнес зона и сауна за обитателите
- Търговски обекти на партерно ниво
- Контрол на достъпа и модерни системи за сигурност
Общи характеристики на сградата и технически предимства:
- Комбинирана фасада от окачена система с широкоформатен гранитогрес и минерална мазилка
- Интегрирано фасадно осветление с автоматично управление
- Висококачествени материали и изпълнение
- Парапети от стъкло и ковано желязо
- Отоплението е предвидено на ТЕЦ
- Дограма: Висок клас немска Kömmerling отлична шумо и топлоизолация
В сградата разполагаме с апартаменти на цени от 170000 евро.
Съдействие за осигуряване на банково финансиране при най-изгодни условия.
Консултант недвижими имоти: Дани Ганчовска







