- 'ГОЛД ИМОТИ' Ви представя новострояща се сграда намираща се в кв. Христо Смирненски, в непросредствена близост до АГ 'Селена'.
- Сградата предлага възможност за живот в дом, който отговаря на всички съвременни стандарти за комфорт, качество и енергийна ефективност.
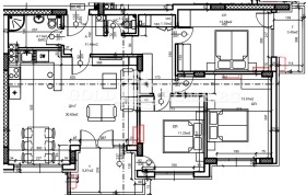
🎯Видове апартаменти :
Предлагаме Ви двустайни, тристайни и четиристайни апартаменти с функционални разпределения.
🌆 Разпределение
Четиристайното жилище се състои от: входно антре, всекидневна с трапезария, три спални, баня с тоалетна, отделна тоалетна, килер и две тераси.
🌞Изложение:
Юг- Изток
✨ Предимства и характеристики на сградата:
- Проектът съчетава вътрешния уют и характер с модерна и елегантна архитектура.
- Външната архитектура на сградата се характеризира с изчистен и изискан стил.
- Вътрешният двор и покривните тераси са озеленени с разнообразна растителност и дървесни видове, подбрани според климатичните особености и изложението на района
- За сигурност на живущите ще бъде вградена система за контролиран достъп и видеонаблюдение.
◆ За изграждане на сградата са използвани само висококачествени материали:
- Конструкцията на сградата е монолитна, скелетно безгредова с тухлени неносещи стени
- Външна топлоизолационна система от Baumit
- Външните и вътрешни преградни стени се изграждат с тухли Wienerberger
- Фасадна външна мазилка в естествени цветове и облицовки от камък.
✔️ За строителя:
- Проектът се изпълнява от водеща строителна фирма с редица изпълнени обекти.
- Качеството на изпълнение е високо, безкомпромисно и това личи по вече построените сгради на инвеститора.
✔️Степен на завършеност :
Жилищата се издават по БДС: шпакловка и замазка, ел. инсталация до ключ, ВиК до тапа, висок клас ПВЦ дограма и външна блиндирана врата.
✔️Етап на строителство:
Към момента строителството е на етап среда на строеж. Пусков срок: края на 2027г.
💰Схема на плащане:
35% при подписване на предварителен договор, 55% на АКТ 14, 10% на АКТ 16.
🚗Паркиране:
Има възможност за закупуване на паркоместа и гаражи.
🎯 Локация:
- Намира се в близост до един от най-големите паркове в града '' Отдих и култура'' , ''Гребна база'' , големи търговски вериги, медицински заведения, търговски обекти и всичко необходимо на една ръка разстояние!
- Районът е предпочитан както инвестиционно, така и за живеене.
➡️ ГОЛД ИМОТИ предлага безплатно професионално кредитно посредничество чрез Credit Center:
- Изготвяне на оферти от водещи банки
- Най-добри условия, съобразени с вашия профил
- Без излишни разходи и време за посещения на различни банкови клонове.
➡️ Още атрактивни и актуални оферти може да разгледате на нашият сайт: www.goldhome.bg
📞 Не пропускайте! За повече информация и огледи, свържете се с нас: 0899 125 189, 0894 274 966, 0896 706 299. Вашият нов дом ви очаква!
Виж всички обяви в gold_imoti.bazar.bg или тук
        
       
         
         
             
            






