📢 ДИРЕКТНО ОТ ИНВЕСТИТОР! БЕЗ КОМИСИОН КЪМ АГЕНЦИЯТА! 📢 ✅ ОФЕРТА: 15801
'ГОЛД ИМОТИ' има удоволствието да Ви представи нов проект в кв. Христо Смирненски!
Предлагаме избор от двустайни и тристайни апартаменти, както и един четиристаен апартамент.
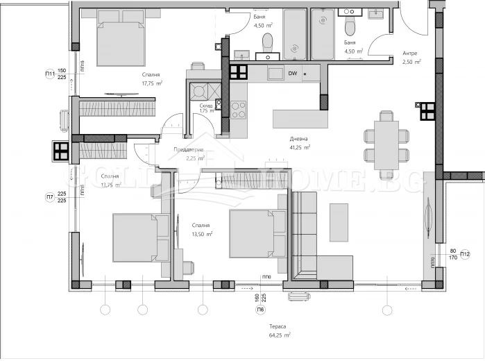
🏡 Четиристайното жилище се състои от: входно антре, всекидневна с кухненски бокс и трапезария, три спални, две бани с тоалетна, склад и тераса, която заобикаля целия апартамент.
- Изложение: Юг - Изток
📍 Характеристики и предимства:
- Най-висок клас алуминиева дограма.
- Френски прозорци - максимална естествена светлина и усещане за простор.
- Блиндирани входни врати.
- Изолация от каменна вата - отлична енергийна ефективност, звукоизолация и устойчивост във времето.
- Видеонаблюдение - спокойствие и сигурност за всички обитатели.
- Видео домофон - видео връзка осигуряваща удобство и допълнителна сигурност.
- Фасадата е проектирана с внимание към детайла, съчетавайки съвременен дизайн и висококачествени материали.
- Озеленяването около сградите създава усещане за баланс между динамиката на града и спокойствието на природата.
➡️Проектът се реализира от доказан строител с редица завършени проекти.
📍Схема на плащане:
Обявената цена е валидна при плащане 20% на Предварителен договор , 70% на АКТ 14 и 10% на АКТ 16.
Има възможност за плащане на 20% при подписване на предварителен договор и 80% на АКТ 15.
За повече информация относно схемите на плащане, моля свържете се с нас!
📍Пусков срок:
- Строителството на сграда е започнато в края на 2024г.
- АКТ 16 се очаква: средата на 2027г.
🚗 ПАРКИРАНЕ
- Има възможност за закупуване на външни паркоместа и гаражи.
🎯 Отлична локация:
- Намира си на 7мин пеша от магазин Lidl, на 3 мин от аптека Гален, на 8 мин от Гребна база, на 20мин от УМБАЛ ,,Каспела' и на 10 мин от Училище - СУ ,,Св. св. Кирил и Методий'.
- Локацията осигурява бърз и лесен достъп до основни пътни артерии, търговски зони, образователни институции и зелени площи.
➡️ ГОЛД ИМОТИ Ви предлага да се възползвате от професионално кредитно посредничество чрез Credit Center при ипотека, потребителски кредит и рефинансиране!
-УСЛУГАТА Е ИЗЦЯЛО БЕЗПЛАТНА!
-ИЗГОТВЯНЕ НА НЯКОЛКО ОФЕРТИ ОТ ВОДЕЩИ БАНКИ!
-НАЙ-ИЗГОДНИ УСЛОВИЯ СПРЯМО ВАШИЯТ ПРОФИЛ!
-НЕ Е НЕОБХОДИМО ДА СЕ РАЗКАРВАТЕ ВЪВ ВСЕКИ КЛОН НА РАЗЛИЧНИ БАНКИ!
➡️ Още атрактивни и актуални оферти може да разгледате на нашият сайт: www.goldhome.bg
📞 За повече информация и при интерес за оглед, моля свържете се с нас.







