ЕРА Голд има удоволствието да Ви представи четиристаен апартамент качествено завършен 'до ключ' в нова бутикова сграда пред Акт 16 в кв. Малинова долина. Жилището предлага просторни и слънчеви стаи с френски прозорци, просторна всекидневна с камина, и голяма тераса около целия апартамент с барбекю.
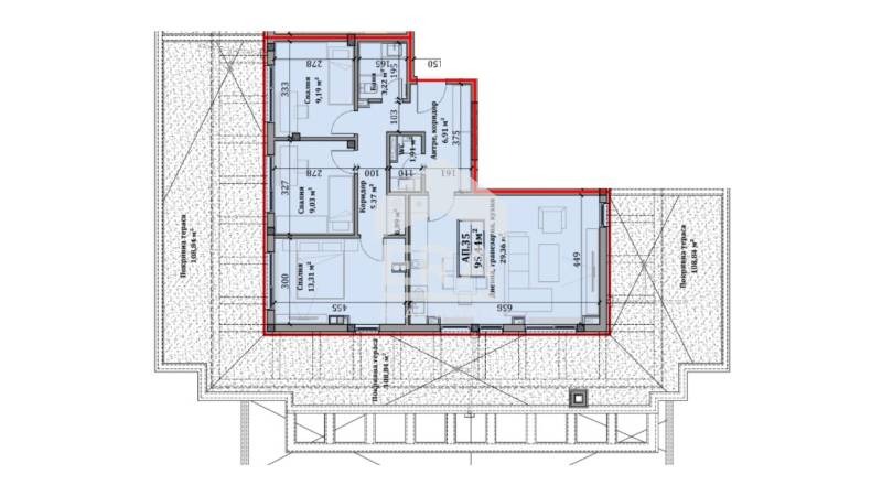
Разпределение: входно антре, дневна с кухненски бокс и трапезария, три спални, баня с тоалетна, отделна тоалетна и панорамна тераса около целия апартамент 109,88 кв. м. Изложение: Юг/Изток/Запад.
Жилището предлага застроена площ от 95,44 кв. м., с 21,16 кв. м. прилежащи общи части и покривна тераса към апартамента 109,88 кв. м.
Детайли:
- Качествено завършен 'до ключ' и готов за мебелиране
- Камина и ефектен таван с вградено oсветлениe във всекидневната
- Южна тераса със собствено барбекю и гледка към планина Витоша
- Отопление на ТЕЦ и климатици
- Модерна сграда с представителни общи части и асансьор
- Възможност за закупуване на надземен двоен гараж на цена от 60 000Е
Локацията е удобна, близо до всичко необходимо за ежедневие и до бъдеща станция на метро от линията 'Надежда - Лозенец'. С бърз достъп е до НСА и Зимния дворец, университетите на Студентски град, Околовръстното шосе, търговски център Ring Mall и Бизнес парк София. Удобен е и достъпът до природен парк Витоша и централната част на София.
ЕРА Кредит предоставя безплатна консултация и съдействие при финансиране на избрания от Вас имот от всички водещи банки в страната и ще договори най-добрите условия за вас!
Оферта 4005180







