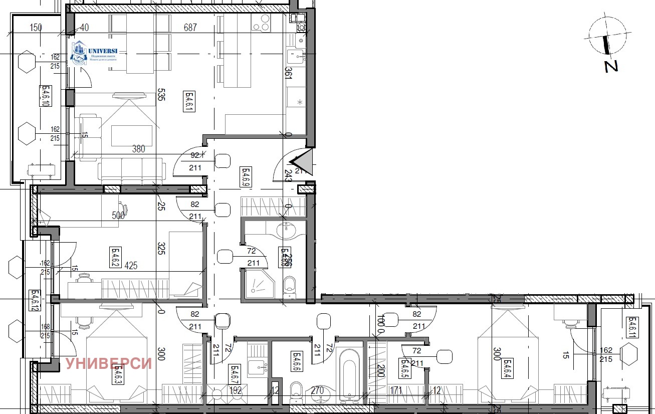
Продаваме четиристаен апартамент, подходящ да задоволи нуждите и на многочленни семейства.
Жилището е с изложение Изток/Запад.
Отоплението е съчетание от подово и с радиатори, като заедно с топлата вода, са осигурени от индивидуално газово котле.
Налични са разводки за климатици, в жилищните помещения.
Дневната е просторна, светла и с хубави пропорции. Спалните са големи, а родителстката е с гардеробна.
Жилища с това разпределение продаваме на втори и четвърти етажи.
Сградата е въведена в експлоатация и в момента се населва.
Налична е възможност за покупка на двойно паркомясто, към всеки един от апартаментите.
Сградата се намира на ул. 'Еньо Вълчев', в непосредствена близост до магазин Фантастико.
Още наши оферти можете да намерите на www.universi.bg







