? Локация: бул. Сливница, ул. Братя Миладинови, бул. Христо Ботев в сърцето на града, в близост до Лъвов мост, Централна гара, Женския пазар, парк Св. Никола , училища, детски градини, магазини и II МБАЛ.
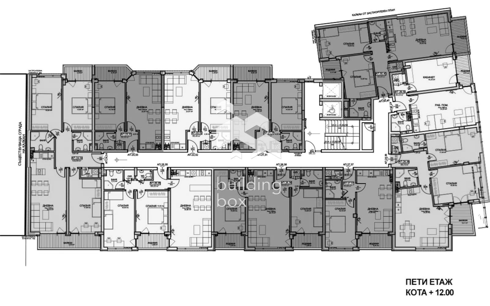
? Апартамент 34
Обща площ: 145.27 кв.м.
Нетна площ: 122.08 кв.м.
Общи части: 23.19 кв.м.
Изложение: изток-запад
Възможност за покупка на подземно или надземно паркомясто на цена между 26 000 - 52 000 евро
Предимства на имота:
Ново строителство от доказан строител
Избор от апартаменти с 1, 2 или 3 спални
Луксозни общи части облицовка от естествен камък
Модерна архитектура, съобразена с нуждите на активния градски човек
Отопление от ТЕЦ
6-камерна немска PVC дограма с троен стъклопакет
Външна блиндирана врата
Апартаментите се издават по БДС: шпакловка и замазка
Строителни характеристики:
Конструкция: монолитна стоманобетонна, безгредова, с колони и шайби
Фундиране: фундаментна плоча
Етажност: 8 етажа
Брой апартаменти: 61
Материали: енергоефективни тухли и топлоизолация по всички ограждащи елементи
Инсталации:
Отопление и вентилация: ТЕЦ, радиатори; вентилация за санитарни възли и подземни гаражи
Електроинсталации: силова, слаботокова, мълниезащита, пожароизвестяване
ВиК: централно топла вода, вътрешно и външно отводняване на тераси и покриви
Срокове за строителство:
Старт: 30.09.2023
Акт 14: март 2025
Очакван Акт 15: декември 2025
Очакван Акт 16 (разрешение за ползване): септември 2026
Защо да изберете този имот?
? Централна локация с отлични комуникации
? Модерна визия и функционално разпределение
? Високо качество на изпълнение
? Лесен достъп до метро и градски транспорт
БИЛДИНГ БОКС предоставя безплатна консултация и съдействие при финансиране на избрания от Вас имот.
Оферта 22525
Виж всички обяви в buildingbox.bazar.bg или тук







