Билдинг Бокс предлага за продажба четиристаен апартамент в малка кокетна сграда от 9 апартамента в сърцето на София на метри от бул. Васил Левски.
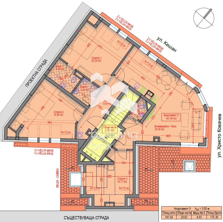
Апартаментът се намира на шести етаж от общо шест, със застроена площ 141,54 кв.м и се състои от антре, голяма дневна с кухненски бокс, три спални, две бани с тоалетни и отделна тоалетна. Отоплението е предвидено на ТЕЦ. Изложението е юг, изток, север.
Към имота се предлага и мазе с площ от 4,03 кв.м.
Сградата е разположена в централната част на столицата, на пешеходно разстояние от основните културни забележителности на стара София, намира се на тиха и спокойна улица с ниски нива на шумово замърсяване, в непосредствена близост до учебни заведения, общински и държавни учреждения, магазини, заведения за хранене, банки, медицински центрове и основни пътни артерии, с бърз и удобен достъп до градски транспорт. В сградата ще можете да се насладите на висок стандарт на градски живот, гарантиран чрез модерни строителни решения с безкомпромисно качество на използваните материали. Сградата се откроява със стилен силует, елегантен дизайн, съчетаваща стил и красива архитектура, които не могат да останат незабелязани.
Сградата е с Разрешение за строеж и ще бъде завършена ноември 2026г.
Има възможност за закупуване на партерни гаражи и подземни паркоместа.
Може да се възползвате от изключително гъвкави схеми на плащане, позволяващи комбинирани начини на финансиране.
Билдинг Бокс предоставя безплатна консултация и съдействие при финансиране на избрания от Вас имот.
Оферта 11240







