СГРАДА В НАПРЕДНАЛ ЕТАП НА СТРОИТЕЛСТВО С АКТ 14 !
СУПЕР КАЧЕСТВО !
МОРСКА ГЛЕДКА ОТ КОТА 0 !
Предлагам на вашето внимание перфектния имот за големи семейства - многостаен апартамент в Бриз с морска панорама.
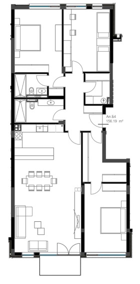
Разположен на 2-ри етаж от общо 6, апартамента разполага с просторен дневен тракт с кухенска част от 49кв.м., три спални - 17кв.м.+ 8,5кв.м. дрешник, 20кв.м. и 17кв.м., две бани с тоалетна по 6,50кв.м. и 4,14кв.м., килер/перално 4,30кв.м., тераса, входно антре - 9кв.м., както и прилежаща маза от 3,42кв.м.
Жилищна сграда в бутиков стил от затворен тип, локализирана в ж.к. Бриз, близо до Морска градина.
Качествено строителство без компромис с най-съвременни материали.
Излжение : ЮГ-СЕВЕР
Възможност за покупка на паркомясто
За повече информация и огледи :
Богдан Димитров Нов век недвижими имоти- 0883/458889







