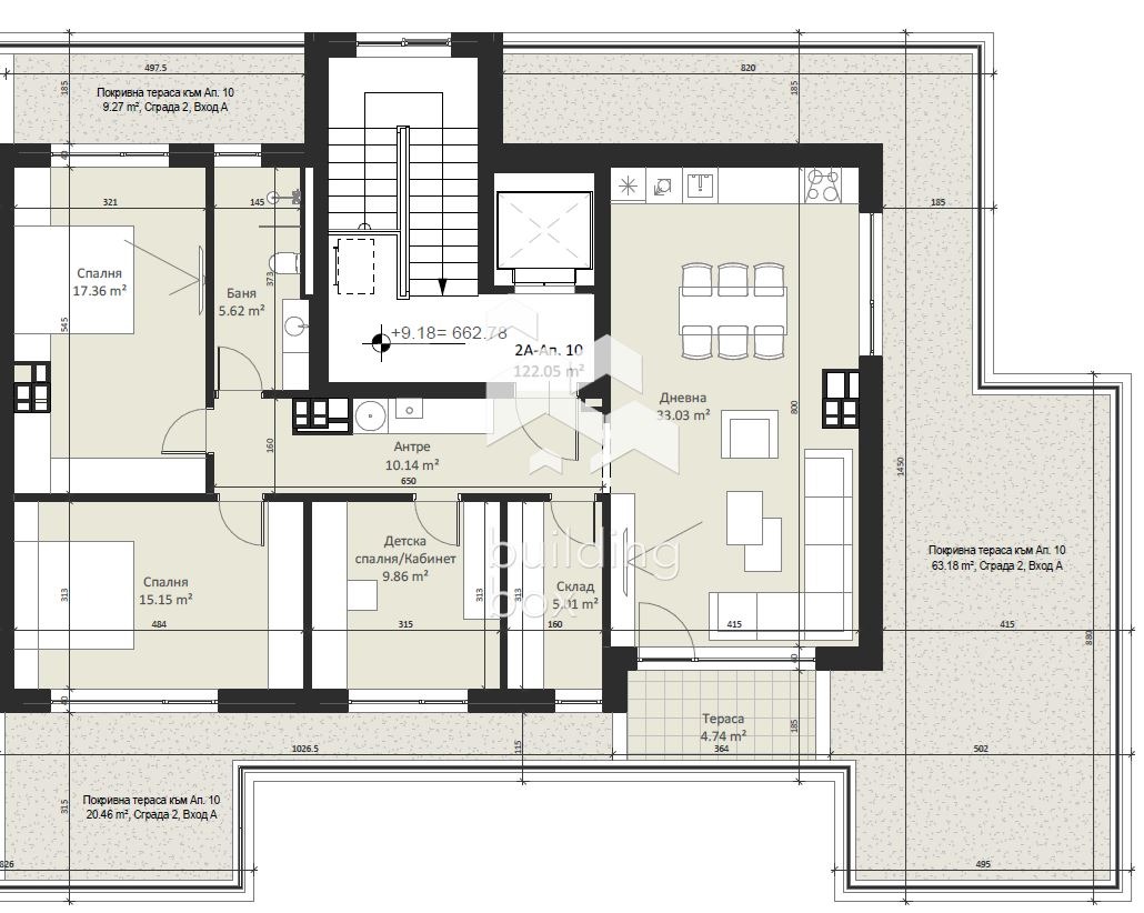
Жилището се намира на четвърти от общо четири етажа, с чиста площ от 122.05 кв.м.
Имотът е четиристаен и се състои от входно антре, дневна с кухненски бокс, три самостоятелни спални, склад, баня с тоалетна и 4 тераси с площ от 92.90кв.м.
Отоплението е предвидено чрез ГАЗ. Изложението е Изток-Север-Юг.
Това не е просто имот това е дом, който вдъхновява! Независимо дали търсите перфектното място за живот или печеливша инвестиция, тук ще откриете идеалния баланс между природа, комфорт и удобство.
Предимства:
- Само по 3 апартамента на етаж, осигуряващи спокойствие, правилни форми и просторни квадратури.
- Изложението е Север-Изток-Юг гарантирана естествена светлина и уют през целия ден.
- Широки зелени площи за разходки, игри и релакс сред природата.
- Избор между дворове и големи тераси за семейно уединение или панорамни гледки към Витоша и София.
- Луксозни общи части стил и престиж на всяка стъпка.
Разнообразие от жилища 2-стайни, 3-стайни, 4-стайни и 5-стайни апартаменти.
Възможност за покупка на подземни паркоместа и гаражи.
В момента е на етап изкопни дейности и ще бъде завършена 2027г.
Локация:
Само на минути от Ring Mall
Бърз достъп до Околовръстен път винаги близо до всичко важно.
В близост до бъдеща метростанция!
Билдинг Бокс предоставя безплатна консултация и съдействие при финансиране на избрания от Вас имот.
Оферта 19353
Виж всички обяви в buildingbox.bazar.bg или тук







