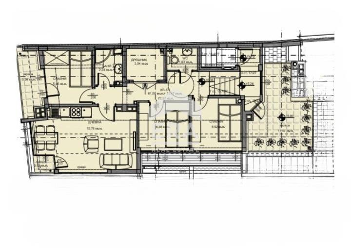
ЕРА Визия предлага за продажба четиристаен апартамент в сграда в начален етап, в района на Колхозен пазар. Имотът е със застроена площ 92,09 кв.м. (с общите части), разположен на 7, последен етаж. Състои се от: коридор, дневна с кухненски бокс (15,76 кв.м.) с излаз на тераса, три спални (5,49 кв.м., 6,92 кв.м, 6,36 кв.м), баня с WC (1,63 кв.м.), WC, дрешник (3,04 кв.м.), тераса (11,47 кв.м.), ведно с прилежаща изба (2,74 кв.м.).
Жилището се предлага необзаведено, в степен на завършеност по БДС: под - циментова замазка, стени - шпакловка, монтирани ключове и контакти, ПВЦ дограма на прозорците, блиндирана входна врата. Отоплението е с електричество. Има възможност за довършване до ключ.
Сградата е седем етажна, с по 3 апартамента на етаж. Ще функционира един асансьор и домофонна система. Въвеждането в експлоатация е предвидено в края на 2025г. Предлагат се различни схеми на разсрочено плащане и продажна цена: 30%, 30%, 30%, 10% - 153 500 евро, при 100 % плащане 149 500 евро. Има възможност за закупуване на паркомясто на цена от: 17 000, 18 000 и 20 000 евро, в зависимост от квадратурата. Районът е тих и спокоен, в близост до: ОУ'Константин Арабаджиев', Колхозен пазар, магазини, спирки на градски транспорт, Православен храм 'Успение Богородично', Централна поща, Фулмакс център, МЦ'Аврора', детски площадки...
Колхозен пазар е един от най-оживените квартали в града, намиращ се на 10 минути пешеходно разстояние от идеалният център. Районът е застроен предимно с къщи. През последните 15 години започна строителство и на 4-5 етажни кооперации.
ЕРА е независим кредитен посредник към БНБ и предоставя безплатна консултация и съдействие при финансиране на избрания от Вас имот... Код: 5300865
Оферта 5300865







