Translations in other languages:
All real estate ads published on imot.bg have been translated into English and published on the partner site
Получихте нова обява по филтър





Промяна на цена на наблюдавана обява


стара цена
нова цена
imot.bg – обяви за продажби и наеми на имоти
Сайт за имоти №1
Translations in other languages:
All real estate ads published on imot.bg have been translated into English and published on the partner site
ДОБАВИ ОБЯВА Редакция на обява
Начало Публикуване Търсене Нови сгради Агенции Новини Кредити Моят имот
Продава 4-СТАЕН
град София, Малинова долина
585 000 €
1 144 160.55 лв.

(2 566 €, 5 018.66 лв./m2)
Не се начислява ДДС
История на цената
Коригирана в 23:01 на 26 ноември, 2025 год.
Обявата е посетена 3965 пъти.
Площ:
228 m2
Строителство:
Тухла,

Описание на имота:


Unique Estates има удоволствието да Ви представи пентхаус за продажба в новостроящ се комплекс от затворен тип в квартал Малинова долина.

Районът е един от най-бързо развиващите се в София, и се отличава с комуникативното си местоположение и близостта до Витоша.

Комплексът се състои от три нискоетажни сгради с Акт 14, изградени с иновативни енергоспестяващи технологии. Впечатляващият озеленен двор без автомобилен достъп, с кленови дървета и гледки към Витоша, създава усещане за комфорт и високо качество на живот.

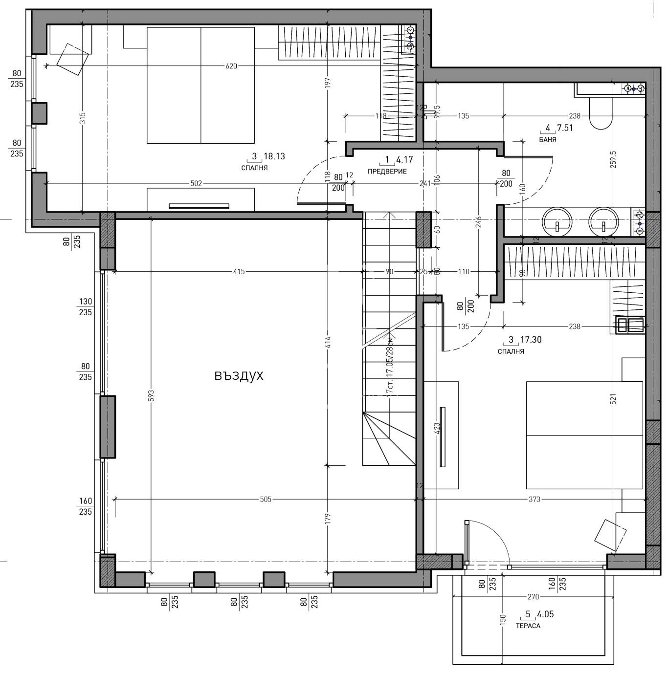
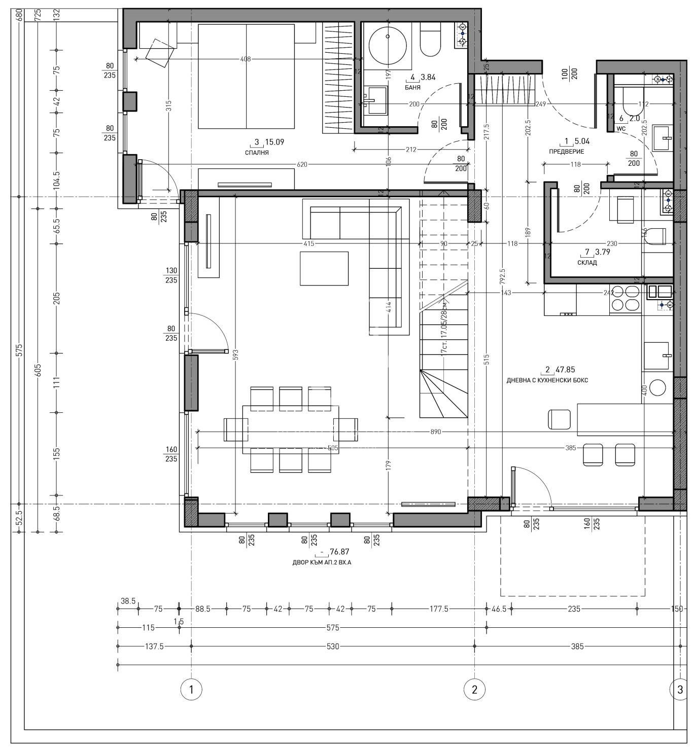
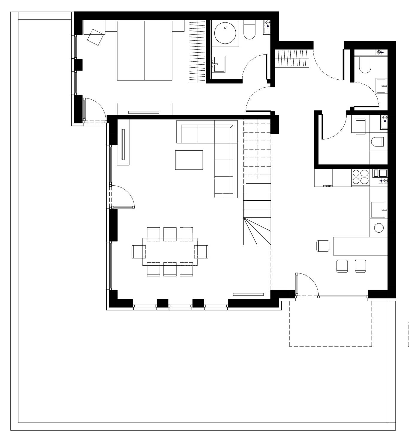
Жилището е с площ от 228 кв.м. и е разпределено на два етажа, към които принадлежи и двор с площ 65,36 кв.м. На първия етаж се намират просторна дневна с кухня и трапезария, спалня, две бани с тоалетна, складово помещение и директен достъп до двора. Вторият етаж включва преддверие, две спални, баня с тоалетна и тераса. Отоплението в жилището е предвидено чрез термопомпи.

В комплекса се предлагат различни по големина апартаменти, включително партерни с прилежащи дворове, с гъвкави схеми за плащане.
Първи етаж: Преддверие, дневна, кухня и трапезария, спалня, две бани с тоалетна, склад и двор

Втори етаж: Преддверие, две спални, баня с тоалетна и тераса Ref. ID:24614
Особености
Тухла
Асансьор
С паркинг
В затворен комплекс
За контакт:
0882 300 400
Брокер:
Иван Тонев
0882 300 400
Още оферти от брокера: Продава | Дава под наем | Купува | Наема
Агенция:
ЮНИК ЕСТЕЙТС
0882 300 400
ЮНИК ЕСТЕЙТС logo
Медал за прослужено време
В imot.bg от 2006 г.
uniqueestates.imot.bg
Адрес:
област София, гр. София, бул. Патриарх Евтимий 17
http://www.ues.bg
ИЗПРАТИ ЗАПИТВАНЕ
ИЗПРАТИ ЗАПИТВАНЕТО

Продава 4-СТАЕН
град София, Малинова долина
Обява: 1d173161562342113

585 000 €
1 144 160.55 лв.
История на цената
(2 566 €, 5 018.66 лв./m2)

Не се начислява ДДС
ЗАПАЗИ ОБЯВАТА

Местоположение: град София, Малинова долина

Виж още имоти от София или още Четиристайни Апартаменти в София
Допълнителни данни за имотите в района и сравнение с други райони: Търсене в АРХИВ 2013 - 2025 г.











Добави/редактирай
вид имот и район
*Средните цени са определени чрез медиана стойност.
Още обяви в imot.bg
Въпроси и предложения към imot.bg
КОНТАКТИ | SMS КОДОВЕ | ПОМОЩ | ОБЩИ УСЛОВИЯ | РЕКЛАМА | ЗАЩИТА НА ЛИЧНИТЕ ДАННИ | КАРТА НА САЙТА |
Резон Медия | Имоти | Автомобили | Работа | Новини | Обяви | Преводи и легализация 2002-2025 ® Copyright imot.bg
© imot.bg ползва и препоръчва хостинг услугите на Bulinfo.net
Следвайте ни в: