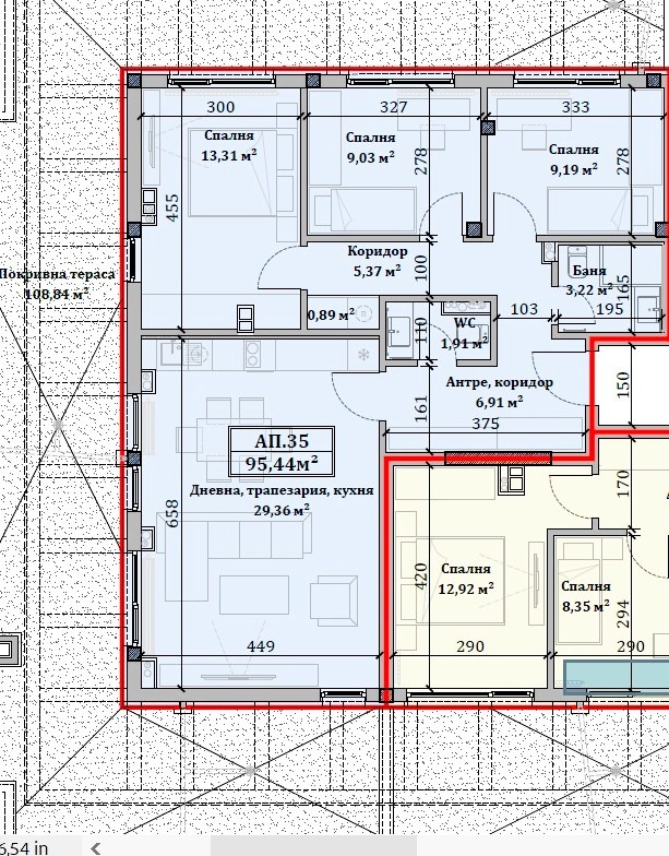
Агенция Т Естейт продава ЧЕТИРИСТААЕН апартамент в сграда пред АКТ 16 в ж.к. Малинова долина. Жилището е с функционално вътрешно разпределение на площ от 116кв.м. (застроена площ 96кв.м. + 22кв.м. общи части и 110кв.м панорамна тераса ) и се състои от дневна с кухня и трапезария (30 кв.м.), спалня (13.31 кв.м.),спалня2 ( 9кв.м), спалня3 (10кв.м), баня с тоалетна (3.22 кв.м.), преддверие (7 кв.м.) и балкон (110кв м). Изложение: ЮГ-ИЗТОК-ЗАПАД. Отоплението ТЕЦ. За удобството и комфорта на бъдещите собственици, в сградата има възможност за покупка на надземни паркоместа и гаражи, осигурено е видеонаблюдение и контрол на достъпа.
Местоположението осигурява всички удобства на район с добре развита инфраструктура детски градини, училища, редовен градски транспорт, магазини, парк и т.н.
Предлагаме и други двустайни апартаменти в сградата.
За повече информация и огледи, водещ брокер: Теодора Петрова 0878 331 809
Предлагаме БЕЗПЛАТНО пълно ЮРИДИЧЕСКО обслужване по сделката и СЪДЕЙСТВИЕ за одобрение и получаване на ипотечен КРЕДИТ за покупка на имот, при най-добри условия за Вас, чрез услугите на лицензиран кредитен консултант.







