Ексклузивни продажби без комисиона от купувача!
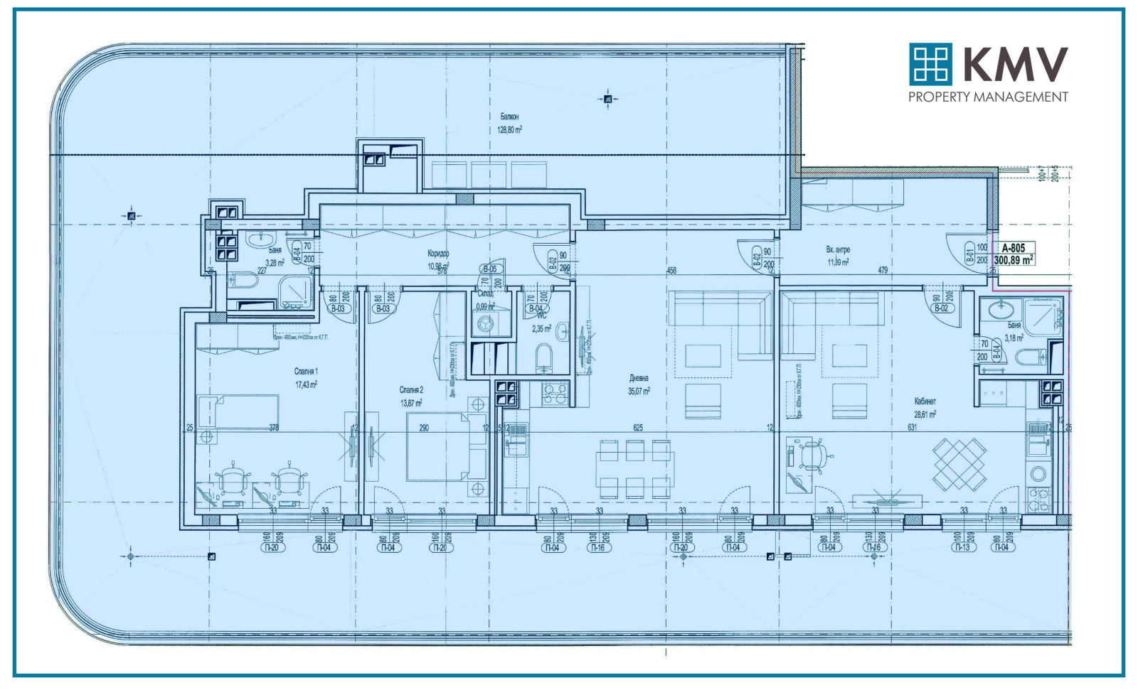
Имотът се намира на 8-ми последен етаж и е със застроена площ от 300,89 кв.м., като се състои от: просторно входно антре, дневна с кухненски бокс /35 м2/, две спални /17 м2 и 14 м2/, кабинет /28,61 м2/, коридор, склаад, две бани, тоалетна и тераса с площ 129 м2./
Изложението на имота е юг/запад.
Жилищна сграда WAVE RESIDENCE се изгражда на ул. проф. Георги Брадистилов до входа на Минно-Геоложки университет, София.
На 600 метра от Метростанция Г. М. Димитров
На 550 метра от парк Студентски град .
Непосредствено до сградата се намират Витоша парк-хотел , Технически университет- София, Столична община район Студентски град и всички висши учебни заведения в района.
Несъмненото удобство на локацията е определено и от близостта до ключови комуникативни точки, а именно само 5 минути пешеходно разстояние са ключови спирки на наземен градски транспорт и няколко големи магазини на хранителни вериги само в радиус от 1-1,5 км.
Проектът включва търговски площи, заведение, аптека, учебни зали, подземно паркиране на две нива и жилищна площ разположена на общо 8 етажа и общо 5 входа, в които ще се помещават едностайни, двустайни, тристайни и четиристайни имоти с изключително благоприятни изложения и максимално удобни разпределения.
Отоплението в сградата ще бъде решено на ТЕЦ.
Освен с отличната локация и широката гама от избор на имоти, сградата ще се отличава и със забележителна архитектура красива фасада в вълнообразни форми, висок клас на изпълнение, отлично качество на вложените материали, както и луксозно завършени общи пространства. Предпоставки, които правят проекта привлекателен за всеки, който търси перфектния нов дом в отлична градска среда.
Строителството на жилищна сграда WAVE RESIDENCE е осигурено, чрез финансиране от банка Инвестбанк АД
Закупуването на имот в сградата е обвързано с покупка на мазе и паркиране по избор /подземно паркомясто или гараж/.
Предлагаме разсрочена схема на плащане, като обявените цени са с включено ДДС:
Депозит- 2500 / BGN 5 000
60% при подписване на пред. договор
20% до 30.09.2025 г.
10% при достигнат етап АКТ 15
10% при достигнат етап АКТ 16
Телефон за връзка с консултант: 0878 300 560 / 0888 26 81 16
Виж всички обяви в kmv.bazar.bg или тук
        
       
         
         
         
         
         
         
         
         
             
             
             
             
             
             
             
            


