LUXIMMO FINEST ESTATES: www.luximmo.bg
Представяме Ви стилен тристаен апартамент, разположен в бързоразвиващия се квартал Малинова долина - район с отлична перспектива, спокойна среда и удобен достъп до ключови пътни артерии и градски удобства.
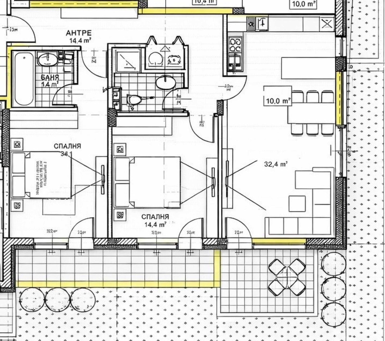
Имотът е проектиран с функционално южно разпределение, което осигурява максимален комфорт и усещане за простор.
Жилището разполага с просторно входно антре, светла дневна с кухненски бокс и трапезария, две уютни спални, две бани със санитарни възли, както и практично складово/техническо помещение. От дневната има директен излаз към веранда, която предлага чудесно пространство за отдих и социални моменти на открито.
Апартаментът ще бъде завършен до ключ с висококачествени материали, модерни настилки, напълно оборудвани бани и стилно изпълнени интериорни решения, което позволява нанасяне без необходимост от допълнителни ремонти.
Сградата е в процес на строителство, като се очаква достигане на Акт 14 в края на 2026 година. Проектът се отличава със съвременна архитектура, качествено строителство и внимание към детайла, осигурявайки комфортен и модерен начин на живот.
Има възможност за закупуване на подземни, надземни, двойни или единични гаражи на отделни цени.
Имотът е отличен избор както за собствено ползване, така и за инвестиция с висок потенциал за доходност в един от най-предпочитаните новоразвиващи се райони на София.
Очакваме Вашето запитване
Ако желаете да организирате оглед на имот, който Ви интересува, или да посетите някой от нашите офиси, моля свържете се с нас. За да уговорите ден и час за среща или оглед, можете да се обадите на посочения в обявата телефон или да изпратите запитване чрез електронната поща. Нашият консултант ще Ви съдейства с всички необходими подробности и ще уговори удобно за Вас време.
Търсите подходящия за Вас имот?
Не се колебайте да се свържете с нас и да ни разкажете за Вашите нужди и предпочитания. Нашият екип ще проведе задълбочено проучване на пазара, за да Ви ...
За повече информация свържете се с нас и цитирайте референтния номер на имота. Моля, кажете, че сте видeли обявата в този сайт.
Референтен номер: SOF 139501
Тел: 0885 965 293, 02 404 60 11
Отговорен брокер:Станимира Вълчева



